Logotyp

Kaxholmen

Björkdungevägen 5

Alla bilder
Sjönära

Vassa vinklar i Kaxholmen

Pedantskött hus, utsökt utsikt och Kaxholmens alla småskaliga fördelar på nära håll. Strand, skog och skola, Ica, kyrka och Grafitgrå. Återvändsgata alltid attraktivt med barn, här har du björkdungen precis utanför dessutom som nog kan få fart på kälkar och skidor. Det är såklart den som givit gatan dess namn. Skog, stigar och spår börjar i änden av gatan, och tar dig bort till Ik Vistas kuperade terräng för löpning och mtb. Ner till stranden går du på ett par minuter. Runt hela Landsjön tar det något längre tid.

Husets fina skick framgår knappt av bilderna, utan bör upplevas på plats. Ett arkitektritat hus, byggt av Lövsta Trähus som gjort kvalitet till adelsmärke. Fina proportioner, integritet mot gatan och salig takvolym i hall, kök och vardagsrum. Nyfunktionalistisk stil där två pulpettak möter varandra med precis lagom överlappning så att norrhimlen kan visa upp sitt blåaste sken i höga fönster. Tre sovrum, två badrum och ett kök som vänder framsidan mot utsikten, familjen och kära gäster på besök. Kanske ett kök där det är självklart att alla hjälper till.

Snabbfakta 1-16 Snabbfakta 2-17

Ett hus som imponerar i kubik och kvadrat. Supersocialt på entréplanet, mer integritet en trappa ner. Tre sovrum som det är i dag, men möjligt att dela av allrummet nere. Råspont i alla väggar och vattenburen golvvärme i båda planen.

Adress Björkdungevägen 5
Område Kaxholmen
Fast.beteckning Kaxholmen 6:240
Bostadstyp Friliggande villa
Upplåtelseform Friköpt
Antal rum 5 rum och kök
Bo & biarea 189 + 65 kvm
Tomtarea 1 033 kvm
Byggår 2003
Pris 6 800 000 kr / bud

Vill du veta mer?

Vill du veta mer?

Johan Marklund Ansvarig mäklare 0723-132000 [email protected] Mer om Johan

Det är 15 dagar kvar till visning.

Söndag 10 Maj med start kl 15:00
Välkommen att boka in er på visning genom bokningsformuläret eller genom kontakt med ansvarig mäklare.
Tisdag 12 Maj med start kl 16:00
Varmt välkommen att boka in er på visning genom bokningsformuläret eller genom kontakt med ansvarig mäklare.

Boka visning

Här kan du anmäla dig till visning för Björkdungevägen 5, Kaxholmen.
* obligatorisk uppgift

Bostadsbeskrivning

Huset

Suterränghus byggt på gjuten platta och golvvärme både uppe och nere. Byggt med ett av funkisstilens främsta särtecken, det så kallade pulpettaket. Ja, till och med dubbelt upp eftersom det är två stora flak som möts. Glappet som blir där emellan låter ett fint norrsken duscha in från ovan via små fönster. De stora glaspartierna och den fria fönstersättning hör också stilen till såklart. Slät fasad i trä som även den är i fint skick efter mer än 20 års tjänstgöring. Tre sovrum i dagsläget, men kan bli fler vid behov. Källaren med många funktionella kvadrat för både förvaring och hobbyverksamhet. Tvättstugan ljusast i klassen.

Trädgården

Framsidan bjuder på stora plattsatta ytor eftersom huset ligger med integritet långt indraget på tomten. Lavendeln utmed gatan är lika ymnig som i Italien. Även huset med integritet som du ser, eftersom de stora glaspartierna och fönstren vetter mot nedsidan. Där hittar du också de lite grönare ytorna. Något hus direkt nedanför finns inte, utan det är kommunal mark efter syrénhäcken som aldrig kommer att bebyggas. Nuvarande ägare brukar klippa gräset även där och har servitut på marken för sin jordvärmeanläggning. Det stora trädet på sydvästra gaveln, är ett egenplanterat valnötsträd. Ser du en skål med nötter framme på visningen är det fritt fram att smaka.

Citat 1

"År 2003 var detta det första funkishus som Lövsta Trähus byggde, dom ska ha en stor eloge för kvaliteten och det jobb de utfört."

"År 2003 var detta det första funkishus som Lövsta Trähus byggde, dom ska ha en stor eloge för kvaliteten och det jobb de utfört."

Citat 1

Huvudentrén

Klinker en lång bit in i hallen som är som ett litet hus i sig med eget snedtak inne och ute. Fint helfönster på sidan som släpper in mycket ljus men som inte drar blickarna till sig från gatan. Elburen golvvärme under klinkern och vattenburen golvvärme genomgående i övriga huset. Fin siktlinje direkt så att du blir varse ljuset, rumsvolymen och utsikten redan när du stiger in i hallen. Till höger hittar du groventrén och ett sovrum som i dagsläget används som hemmakontor. Klädkammaren inom räckhåll om det börjar bli för många jackor på hängaren i hallen.

Vardagsrummet

Himmelskt vackert själva rummet i sig. Lägg till den raklånga utsikten över Landsjön så skapas magi alla dagar hela året. Nuvarande ägare var väldigt bestämda med att de ville ha trä i taket, och tack vare det skapas den varma ombonade känslan trots avståndet upp. Rummet får en varm och naturlig inramning, som ett gipstak aldrig hade skapat. Golvet också i trä men lite mer förväntad ekparkett som är i perfekt skick över hela ytan. En tänkbar förfining vore trots det att slipa golvet innan inflyttning, för lite solblekt har det såklart blivit av alla fönster.

Citat 2

"Vardagsrummet är liksom husets hjärta och utsikten ner mot sjön och landskapet bakom är som ett levande vykort."

"Vardagsrummet är liksom husets hjärta och utsikten ner mot sjön och landskapet bakom är som ett levande vykort."

Citat 2

Köket och matplatsen

Helt öppet mot vardagsrum och matplats, köksön delar såklart av men vänder den som står vid spis och gryta mot de hungrande gästerna. Köksön är helt klädd i svart granit och med egen liten vattenho för att ha pastavattnet till reds. Den långa köksbänken en kombination av trä, rostfritt och mer svart granit. Ljuset kommer in genom små fönster mot gatan och från sidan via det stora skjutbara glaspartiet mot morgonens uteplats. Integritet även i köket som ni märker. Matplatsen ligger som i en egen utskjutande del mellan balkongen och nyss nämnda uteplats. Kaminens lågande värme ser och känner du från alla håll.

Sovrummen

På entréplanet hittar du två sovrum, ett litet och ett stort. Alltså har huset två likvärdiga sängkammare som ligger ovanpå varandra, med samma fina fönstersättning i båda. Uppe har du bred pardörr till en fransk balkong – alltså med räcket direkt inpå fasaden, därnere en lika bred och luftig passage ut i trädgården. De lite mindre fönstren är också öppningsbara precis intill dörrarna om du vill sova svalt. Utsikten även i markplanet imponerar. Om du vill ha ytterligare sovrum så skulle allrummet nere gå att dela av vid behov. Även tvättstugan har potential som sovrum, men kräver större förändring i huset. Ljusa kalkstensbänkar i alla fönster.

Citat 3

"Det är ett varmt och välkomnande hus det här, vi får verkligen hoppas att nästa ägare kommer tycka lika mycket om det som vi gör."

"Det är ett varmt och välkomnande hus det här, vi får verkligen hoppas att nästa ägare kommer tycka lika mycket om det som vi gör."

Citat 3

Badrummen

Badrummen uppe och nere är lite olika i karaktär och storlek. Uppe lite striktare med grafitgrått golv och vita väggar. Duschen så där snygg och stor att man kan gå in och göra det man ska utan att vara rädd att skvätta ut över golvet. Badrummet nere lite mer av en färgklick tack vare himmelsblå klinker på golvet, men vita väggar även här. Här har golvytan räckt till en fin bastu dessutom som har ett eget litet fönster som kräver att du klättrar upp på översta bänken för att se finessen med. Kolla själv får du se. Golvvärme i badrummen, precis som i resten av huset.

Allrummet i nedre plan

Trappan ner är inte första bästa standardlösning heller som du märker. Snyggt rundad utskärning i golvet skapar en liten extra öppning upp och ner. Solida steg och stolpar i ek. Allrummet nere är ju nästan lika stort som vardagsrummet uppe sett till ytan. Glaspartiet vetter mot Landsjön även här, och dörren tar dig ut i trädgården på baksidan. Lägg märke till de fina kalkstensbänkarna i fönstret. Rummet skulle som sagt gå att dela av om du behöver ett avskilt sovrum ytterligare. Varför inte ett glasparti i någon form så att ljuset kan flöda fortsatt. Det blir rätt mycket rum och golvyta kvar ändå för en tv-hörna eller ett hemmakontor.

Citat 4

"Allrummet nere har även det väldigt fin utsikt ner mot Landsjön och skulle absolut gå att dela av om man vill ha fler sovrum."

"Allrummet nere har även det väldigt fin utsikt ner mot Landsjön och skulle absolut gå att dela av om man vill ha fler sovrum."

Citat 4

Tvättstugan

Nuvarande ägare har bott i huset sedan det byggdes 2003 och har således varit med och planerat allt, från golv till tak. En tvättstuga långt in i källarvalven var alltså helt otänkbart. Ljust och stort skulle det vara, och så blev det också med dubbla fönster mot uteplatsen under balkongen. Här står du och stryker och viker tvätten med utsikt ut över Landsjön – en svårslagen lyx kan man tänka. Lägg till fem torklinor i taket så förstår du att ägarna även har tänkt på effektivitet och logistik. Golvvärmen gör att tvätten torkar snabbt. Tvättstugan hade också kunnat bli ett ytterligare sovrum.

Övriga utrymmen i nedre plan

Detta hus har fått en tydligt släng av 60- och 70-talets överpraktiska suterränghus. Alltså rejäla biytor som öppnar sig in bakom badrummet nere och innanför tvättstugan. Redan pannrummet med bra förvaringspotential förutom att det hyser en nästan ny värmepump från IVT. Även ventilationen hittar du här, med en specialfunktion att den kan suga luft längst upp i taknocken och sprida den till övriga huset. Sen fortsätter källaren med både vinkällare och matkällare, mer förråd och en verkstad för diverse pyssel och projekt som fodrar oömma ytor. Stor groventré ut i trädgården där det finns plats för vinterförvaring av cyklar och vinterdäck. Detta sista utrymme ligger alltså under carporten och är det enda rummet som inte har golvvärme. Det är ett stort hus som du märker.

Citat 5

"Det är lätt att följa solen från uppgång till nedgång, du börjar utanför köket och sen rör man sig vidare till terrassen framåt eftermiddagen."

"Det är lätt att följa solen från uppgång till nedgång, du börjar utanför köket och sen rör man sig vidare till terrassen framåt eftermiddagen."

Citat 5

Uteplatserna

Här kan solen följa dig runt huset, eller om det möjligen är tvärt om. Från köket kommer du ut på terrassen på sidan av huset och kommer åt den tidigaste morgonsolen om du är arla uppe, men solen är kvar här en stor del av eftermiddagen. Därefter är det bara att flytta över till balkongen som har kvällssolen i sikte till hon släntrar ner långt borta i Västergötland. Nuvarande ägare har förberett för en inglasning på uteplatsen under balkongen, men har inte kommit till skott, och kanske är det inte helt nödvändigt när hela vardagsrummet är som en inglasning. Du får se hur dina tankar går.

Carporten

Taket fortsätter ut på norrsidan av huset och landar på tre fristående stöttor och skapar ett perfekt skydd för bilen, även om den inte står inne. Det ska mycket till innan det blåser in snö så det stör. Frosten håller sig alltid borta från rutorna bara med minsta tak. Smidigt att parkera och slinka in i huset med matkassar och barnstolar genom sidodörren till hallen, den dörren är också kornblå. Om du kollar planlösningen så inser du att källarens groventré ligger under carporten som ett kallförråd.

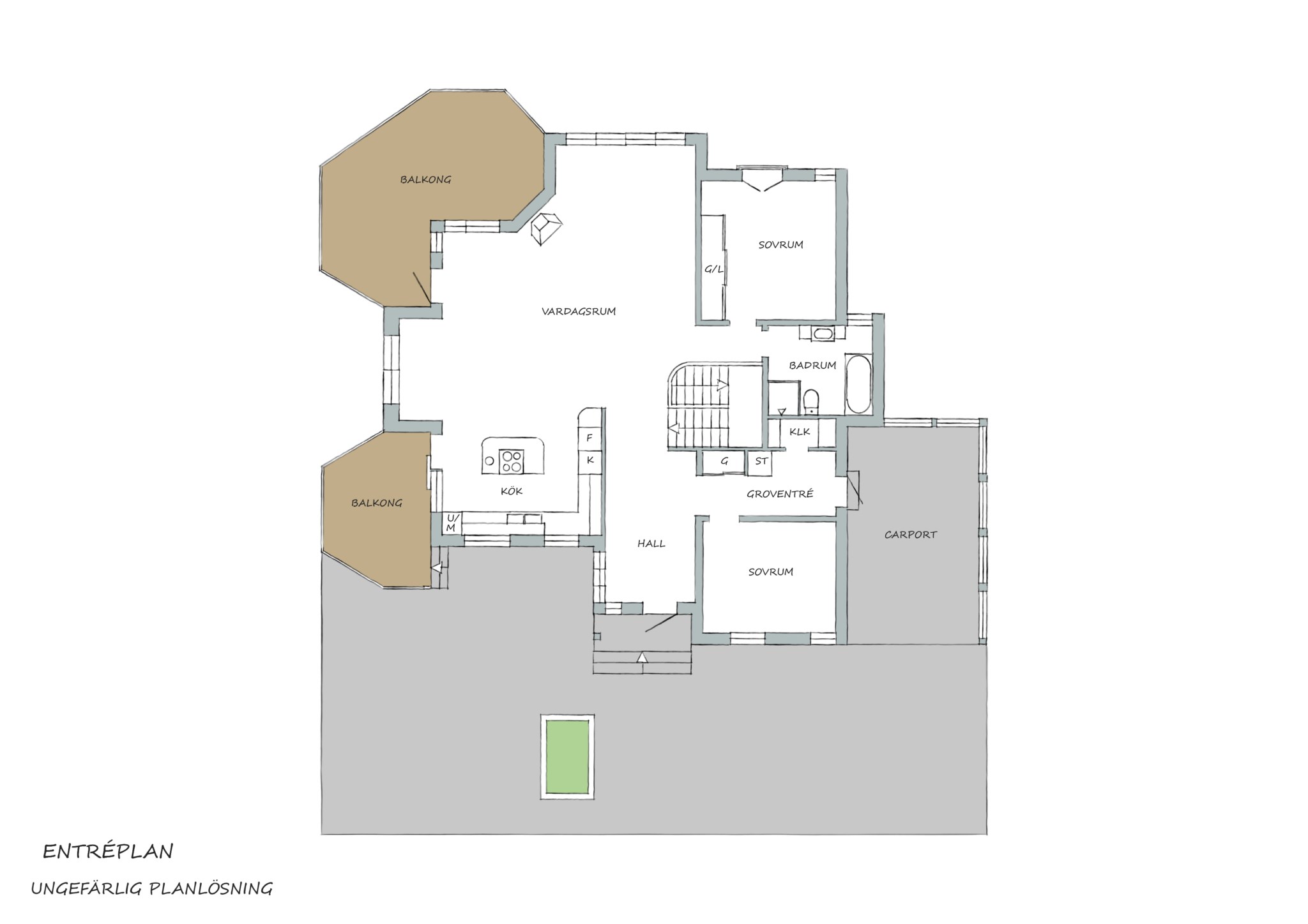
Planritning

Mäklaren informerar

Nuvarande ägare lät uppföra huset 2003 med hjälp av Lövsta Trähus från Aneby. Nedan följer information om förbättringar som är gjorda sedan dess och annat som är bra att känna till vid ett köp.

Köket kommer från Ballingslöv och installerades när huset byggdes 2003. Vitvaror har bytts löpande under åren; 2010 byttes induktionshällen, kylskåpet och frysen, 2012 byttes microvågsugnen, 2018 byttes varmluftsugnen och 2023 byttes diskmaskinen.

Värmesystemet uppgraderades 2020 med ny jordvärmepump från IVT (Premium Line HQC8) och nedgrävning av mera jordvärmeslang. Från början fanns bara 150 meter, men 2020 adderades ytterligare 400 meter så i dagsläget finns hela 550 meter slang kopplat mot värmepumpen. Detta gör att pumpen inte behöver arbeta så hårt och får en hög verkningsgrad, något som förklarar husets låga förbrukning av el för uppvärmning och varmvatten och att det har energiklass B i Energideklarationen. Den nya slangen ligger nedgrävd på kommunens mark nedanför huset mot Landsjön och servitut på detta finns. Allt arbete utfört av Perssons Rör AB.

2022 plåtades alla vindskivor in av Wahlunds Plåt AB och i samma veva målades alla vita trädetaljer på husets fasad om av Bengt Måleri AB.

I tvättstugan finns tvättmaskin (2014) och torktumlare (2003).

I huset finns en centraldammsugare från Husky installerad och det finns ett uttag per boendeplan.

Huset omfattar totalt 254 kvadratmeter varav 232 hålls uppvärmda, förrådet som ligger under carporten används idag som kallförråd och omfattar 22 kvadratmeter, men skulle gå att hålla varmt om man lät installera en värmekälla här.

I båda planen ligger vattenburen golvvärme, förutom under klinkergolvet i huvudentrén i entréplanet där det ligger elburen golvvärme för att man även under sommaren ska kunna värma golvet här om man så önskar.

Lövsta Trähus är kända för sin höga byggkvalité där de bland annat jobbar uteslutande med riktig råspont i alla innerväggar, något som gör att du inte behöver plugga eller borra onödigt stora hål när du ska montera upp t.ex TV eller tavlor etc.

Huset är anslutet till öppen fiber via Jönköping Energi, så kallat Wetternet. Den fasta månadskostnaden för denna uppkoppling är för närvarande 70 kr/mån. För mer information om olika bredbandslösningar och TV-paket som kan beställas via denna tjänst, besök gärna wetternet.se

Vid köpet medföljer följande lös egendom om så önskas: Samtliga garderober, Automowern som sköter om gräsmattan, arbetsbänken i källaren i förrådet under carporten, hyllor och skåp i källaren samt förrådshyllor.

Bilder

Planritning

Kaxholmen

Grafitgrå, Hunnerydsbadet, Kallefeldts läderfabrik, Rudenstams Gårdsbutik, IK Vista, Vista Gårdsrosteri eller ICA är vardagliga utflyktsmål och platser för en Kaxholmsbo.

Vill du bevaka fler bostäder som denna?