Logotyp

Bunn

Bunn Sjöbo 6

Alla bilder
Naturgranne

Fria luftvägar mot skog och sjö

Ett bra året-runt-hus som klänger sig fast på en av Bunns kullar. Skogen i ryggen och sjösidan framför ögonen från altan och vardagsrum. En kuperad tomt med långhuset som sträcker ut sig mellan det fristående gästhuset och vedförrådet. Två bra sovrum, ett stort vardagsrum där kaminen snabbt stödvärmer hela rummet inklusive köket vid behov. Soffan vill du nog mysparkera närmast elden. Sommartid kommer du inse att altanen sitter så rätt som den kan göra på huset för att solens strålar ska fläta sig in från tidig morgon genom skogen och sedan hålla sig framme mest hela dagen.

Det ursprungliga huset är byggt på 1970-talet när sportstugorna blev en viktig del i samhällets strävan efter frisk luft, mer fritid och ett hälsosammare liv åt fler människor. Huset är i god ordning för att även du ska kunna förverkliga den visionen omgående. Svamp- och bärskogen precis intill, och sjön bara dryga hundra meter bort om du vill simma, paddla, fiska, eller skära några varv med skridskorna på isen som ofta lägger sig snabbt. Och det tål att upprepas, detta är lika mycket ett sommar- som vinter-nöje, tack vare värmepumpen, kaminen och vedförrådet så nära.

Snabbfakta 1-27 Snabbfakta 2-28

Fritid när den är som mest fri. Ett åretrunt-nöje som är startklart i alla avseenden. För en helg i mars, en månad på sommaren eller ett aktivt höstlov. Med gästhuset inräknat finns möjlighet för sovplats upp till tio personer.

Adress Bunn Sjöbo 6
Område Bunn
Fast.beteckning Södra botarp 1:32
Bostadstyp Friliggande villa
Upplåtelseform Friköpt
Antal rum 4 rum och kök
Bo & biarea 76 + 24 kvm
Tomtarea 1 089 kvm
Byggår 1972
Pris 2 000 000 kr / bud

Vill du veta mer?

Vill du veta mer?

Simon Staflund Ansvarig mäklare 0735-067000 [email protected] Mer om Simon

Det är 1 dag kvar till visning.

Söndag 7 December med start kl 10:15
Varmt välkommen att boka in er på visning genom bokningsformuläret eller genom kontakt med ansvarig mäklare.
Måndag 8 December
Kontakta mäklaren för bokning. Varmt välkomna!

Boka visning

Här kan du anmäla dig till visning för Bunn Sjöbo 6, Bunn.
* obligatorisk uppgift

Bostadsbeskrivning

Huset

Huset ligger alltså på en relativt brant sluttning, vilket öppnat för en bra källare under en del av huset med mycket bra förvaring, tvättmaskin och verkstadsutrymme. Resten av huset byggt på öppen torpargrund som är lätt att inspektera för besiktningsmannen. När nuvarande ägare lade in nytt golv i vardagsrummet och köket för att binda ihop ytorna bättre, passade de på att isolera golvet ytterligare. Snyggt och klokt. Badrum och kök renoverade av en tidigare ägare som bodde i huset året runt. Båda i mycket trevligt skick.

Gästhuset

Även gästhuset byggt på torpargrund, med ett stort sovrum för den breda dubbelsängen men också plats för en barnsäng vid behov. Toaletten här inne är inte i bruk idag, men går lätt att koppla på om man önskar. Golvet ser nytt ut och är så i det närmaste. När nuvarande ägare bytte de olika golven i stora huset blev detta nästan nya ekgolv över och klickades på plats med nya lister runt om. Ett perfekt hus för gäster eller hemvändande barn med familj som vill rå sig själva om natten. Direktverkande el-element här inne.

Citat 1

"Förra ägaren bodde här året runt, och vi har varit här både sommar och vinter."

"Förra ägaren bodde här året runt, och vi har varit här både sommar och vinter."

Citat 1

Altanen

Öppet under tak, och en väldigt användbar altan om man ser till hur ombytlig den svenska sommaren kan vara. Som gjord för en kräftskiva under augustimånens fulla sken, alltså även om regnet bjuder in sig. Ingången ligger närmast köket. Balkong eller altan? Vi kallar det altan är för att det även finns en trappa ner till trädgården. Taket av genomskinlig plast som inte snuvar dig på dagsljuset, men ändå dämpar uv-strålningen. Och regnskurar som sagt.

Köket

Mycket funktion som inte kommer hindra dig från att bjuda på större kalas både sommar och vinter om du vill. Nytt enhetligt golv binder ihop köket på ett fint sätt med resten av vardagsrummet sedan en väggstump togs ner för friare luftvägar. Rostfri arbetsbänk och både kyl och frys. Kaklet är svart, men vid närmare granskning ser du att det är en lättstädad laminatpanel. Inga fogar där tomatsåsen nyper fast alltså. Fint med fönstret upp mot skogen så att du ser när räv och rådjur smyger förbi. Vill du ha en större kyl eller frys så är källaren en bra plats för det.

Citat 2

"Vi tog bort en vägg i köket som gjorde hela huset mycket öppnare och mer socialt; nytt golv blev det också."

"Vi tog bort en vägg i köket som gjorde hela huset mycket öppnare och mer socialt; nytt golv blev det också."

Citat 2

Vardagsrummet

Soffan här eller där, ja du får pröva dig fram i detta avlånga rum som inte hindrar dig från att välja både stort matbord och lat soffa. Golvet nylagt över hela ytan sedan väggen vid köket plockades bort för att du ska ha full siktlinje genom hela huset i princip. Kaminen lockar de lite svalare kvällarna men grovarbetet gör värmepumpen, som även kan alstra kyla på sommaren vid behov. Golvet fick ett lager extra isolering vid omläggningen, för att befästa vinteregenskaperna ytterligare. Skog och sjö inom synhåll åretrunt.

Sovrummen

Två stora sovrum som ligger lite avsides från varandra, vilket kan vara praktiskt med gäster eller med stora barn som vill privatisera sin tillvaro bakom stängd dörr. Det ena ligger till höger från hallen sett, och det andra hittar du när du rundar in mot köket. Båda rummen med nyare parkettgolv. Garderober i de ena och ett större förråd i det andra. Sommarnätterna med fönstret öppet blir längtan i finaste form. Mer sovplats finns i gästhuset vid behov.

Citat 3

"Vi har under årens lopp hyrt ut huset till och från. Människor från många olika länder har fått njuta av skogen, tystnaden och sjön – och uppleva Bunn från just den här platsen."

"Vi har under årens lopp hyrt ut huset till och från. Människor från många olika länder har fått njuta av skogen, tystnaden och sjön – och uppleva Bunn från just den här platsen."

Citat 3

Badrummet

Klokt renoverat och i mycket bra skick. Våtrumsmatta på golvet är en bra kombo med träbjälklag och torpargrund. På väggarna samma smarta laminatpanel som i köket. Lättstädat, tåligt och snyggt. Fastigheten har vatten och avlopp via samfällighet i området, vilket gör livet rätt mycket smidigare. Handdukstorken gör livet rätt mycket skönare dessutom. Ett dyk och dopp från någon av bryggorna är aldrig långt bort.

Omgivningarna

Att bo i Bunn innebär också att du blir en del av en stark gemenskap, med ett byalag som driver många kul aktiviteter och utvecklar fler goda sidor av Bunn. En gemenskap som du såklart själv väljer hur mycket du vill engagera dig i. Valborg, midsommar och julgransplundring är särskilda höjdpunkter under säsongen, liksom årets fisketävling. Samhället har samma namn som sjön, och det nog inte en slump, för här kretsar livet mycket kring sjön: bad, båt, kanot, skridskor och fiske – sommar som vinter. Den populära Bauerleden går precis nedanför huset, så du ansluter smidigt för vandring eller cykling.

CItat 4

"Det går en stig upp i skogen precis utanför vår tomt, och Bauerleden passerar inte så långt från huset också."

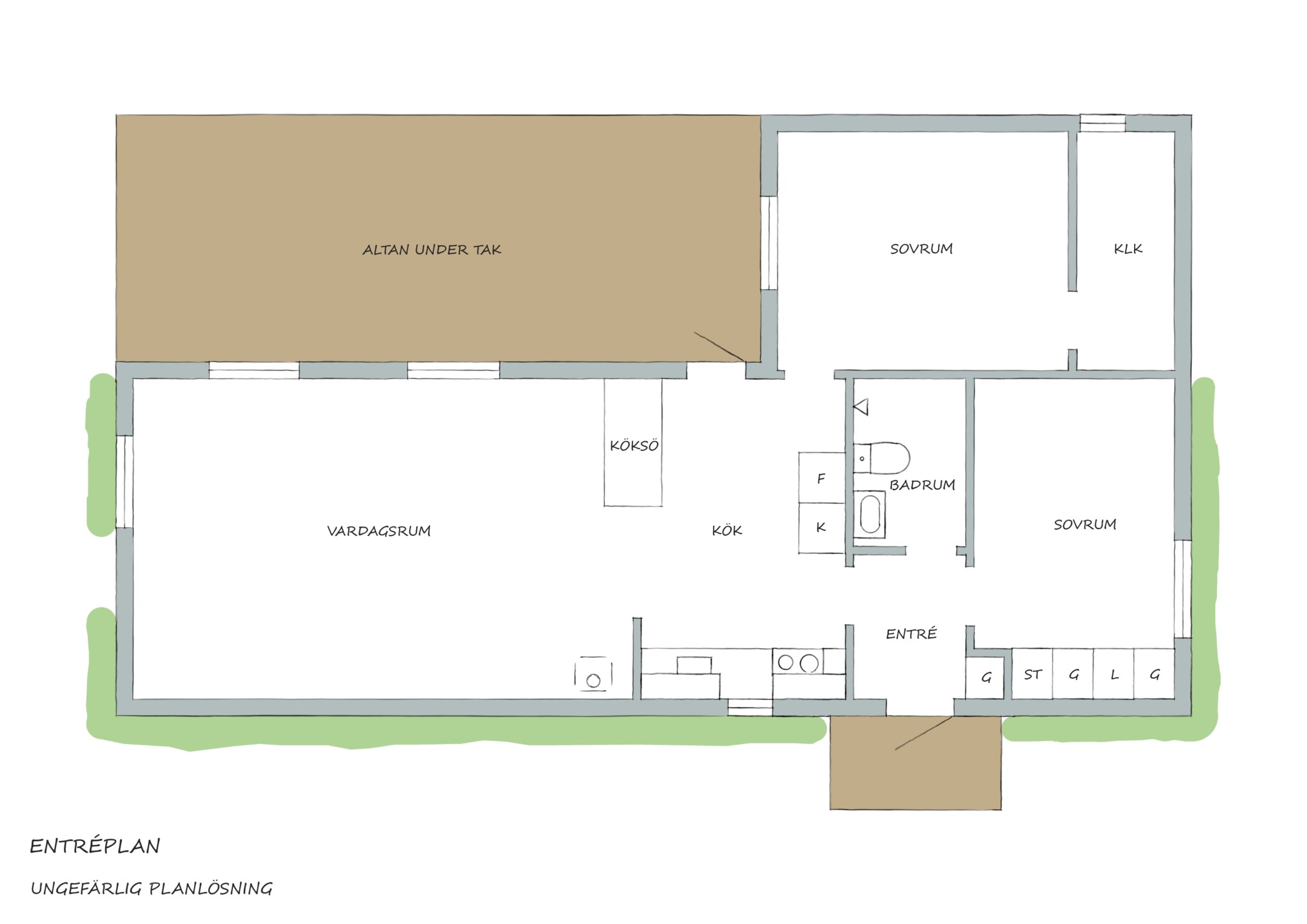
Planritning

Mäklaren informerar

Nuvarande ägare har ägt huset sedan 2020. Nedan följer en kortare sammanfattning av utförda förbättringar, både nuvarande och tidigare ägares, samt annan information som kan vara bra att ha med sig vid ett köp.

Köket färdigställdes i samband med en större invändig renovering 2013. Här finns följande vitvaror: Spis med häll och ugn, spisfläkt, mikrovågsugn samt en kombinerad kyl/frys. Nuvarande ägare tog 2021 ner en vägg mellan köket och vardagsrummet för att få till den öppna planlösningen och köksön. I samband med detta lades också nytt golv in i dessa rum.

Braskaminen och bidrar med såväl värme som hög mysfaktor. Protokoll från brandskyddskontroll hittar du tillsammans med övriga dokument.

Gästhuset mäter cirka 19 kvadratmeter och uppfördes 1982. Här finns, förutom ett sovrum, även ett badrum. Detta badrum har nuvarande ägare inte använt men går att koppla på. Är i behov av renovering.

I källaren finns en tvättmaskin av märket Miele. Denna ytan renoverades 2020 och vidare utfördes diverse rörarbeten här 2023.

Bland övriga renoveringar märks byggnation av altan 1984, nytt altantak 1997, installation av luftvärmepump 2010, målning av fasaden 2019, nytt golv och målning i gästhuset 2021, målning av alla ytskikt inomhus 2021/22, adderade tre ljusstolpar 2022, ny altangrind 2024 samt ny elcentral 2025.

Fastigheten är ansluten till en gemensamhetsanläggning och har vatten och avlopp via samfällighet.

Biluppställningsplatsen och förrådsbyggnaden på vänster sida om vägen arrenderas för närvarande ägaren till denna fastighet. Arrendeavtalet är skrivet 1982 på 49 år, vilket innebär att nuvarande avtal sträcker sig till 2031.

Fastigheten är ansluten till Wetternets öppna fibernät för en framtidssäkrad uppkoppling. Läs gärna mer på www.wetternet.se.

Bilder

Planritning

Bunn

Samhället har samma namn som sjön, och det nog inte en slump, för här kretsar livet mycket kring sjön: bad, båt, kanot, skridskor och fiske – sommar som vinter.

Vill du bevaka fler bostäder som denna?