Logotyp

Ljungarum

Hermelinstigen 16

Alla bilder
Naturgranne

Fin funkis i vinkel

Ljungarums kyrkby presenterar här en fint renoverad 60-talsvilla i utmärkt uppdaterat skick. Byggd i vinkel och med ytor, rum och möjligheter som öppnar sig oanat när du kommer in. Inte minst en trappa ner, där barn och tonåringar kommer hitta många oömma och autonoma ytor. Tre sovrum uppe, och nere kan du lätt ordna två till. Huset har nämligen en trappa i varje ände av huset vilket gör att livet kan flexa rätt fritt i framtiden, hur den nu kommer att se ut. Vinkelbygget öppnar också för en skyddad baksida full av sol, saft och bullar.

Här bor du så nära förskolor och skolor att de små kan tulta dit för egen maskin. Kyrkan mitt i byn är från medeltiden och alltså den äldsta i kommunen. Fotbollsplanerna och lekplatserna är inte riktigt lika gamla, men samlar många med spring i benen. Stigarna i Strömsbergs naturreservat vindlar upp och ner genom lövskogen och är ett äventyr både sommar och vinter. Att forsa fram med pulkan ner genom bokskogen bör bli ett minne för livet, även för vuxna. Kommunikationerna är bra i alla riktningar med bil, buss och cykel.

Snabbfakta 2-50 Snabbfakta 1-52

Exteriören på denna 60-talsvilla är så fint renoverad att det känns som ett nybygge. Planlösningen i vinkel gör att stora ytor öppnar sig i båda ändar av huset. Fyra sovrum i dagsläget, men det kan bli fler om du behöver. Ljungarums kyrkby – barnfamiljens dröm.

Adress Hermelinstigen 16
Område Ljungarum
Fast.beteckning Äppelkakan 4
Bostadstyp Friliggande villa
Upplåtelseform Friköpt
Antal rum 7 rum och kök
Bo & biarea 135 + 131 kvm
Tomtarea 936 kvm
Byggår 1966
Pris 5 200 000 kr / bud

Vill du veta mer?

Vill du veta mer?

Simon Staflund Ansvarig mäklare 0735-067000 [email protected] Mer om Simon

Vill du veta mer om bostaden?

Fyll i dina uppgifter nedan så kontaktar jag dig.

Bostadsbeskrivning

Huset

En vinkel-villa blir alltid lite mer spännande för att ytorna öppnar med mer rymd. Här innebär det stora sociala ytor i båda ändar av huset, för att inte tala om en trappa ner. Dessutom finns ett stort garage sammanbyggt med huset. Fasaden från början i tegel, men huset har av nuvarande ägare fått en stramt putsad fasad med plåtklädd takfot. Det platta taket är omlagt 2011 med ny tjärpapp, och utan anmärkning vid nyligen genomförd besiktning. Huset värms med luftvärmepumpar och direktverkande el.

Trädgården och altanen

Din privata del av trädgården ligger definitivt på baksidan av huset. Framsidan är lite mer strikt och formell. Nuvarande ägare har dessutom gjort det lätt att njuta av trädgården. Men är du typen som drömmer om längre rabatter, fler blomstersängar och djupare odlingslådor så finns det plats för det. Huset bildar med garaget en stor u-form som skyddar både dig och växtligheten från nordanvinden. Trädäcket är stort och du kommer hitta både skugga och sol, vilket du än åstundar mest. Ägarnas sommarfavorit är den upphöjda skuggan vid friggeboden. Via genväg genom häcken hittar du till skogsdungen och lekplatsen på allmänningen.

Citat 1

"Baksidan har många sittplatser att välja på beroende på årstid och tid på dagen; min favorit är den upphöjda intill friggeboden."

"Baksidan har många sittplatser att välja på beroende på årstid och tid på dagen; min favorit är den upphöjda intill friggeboden."

Citat 1

Entrén

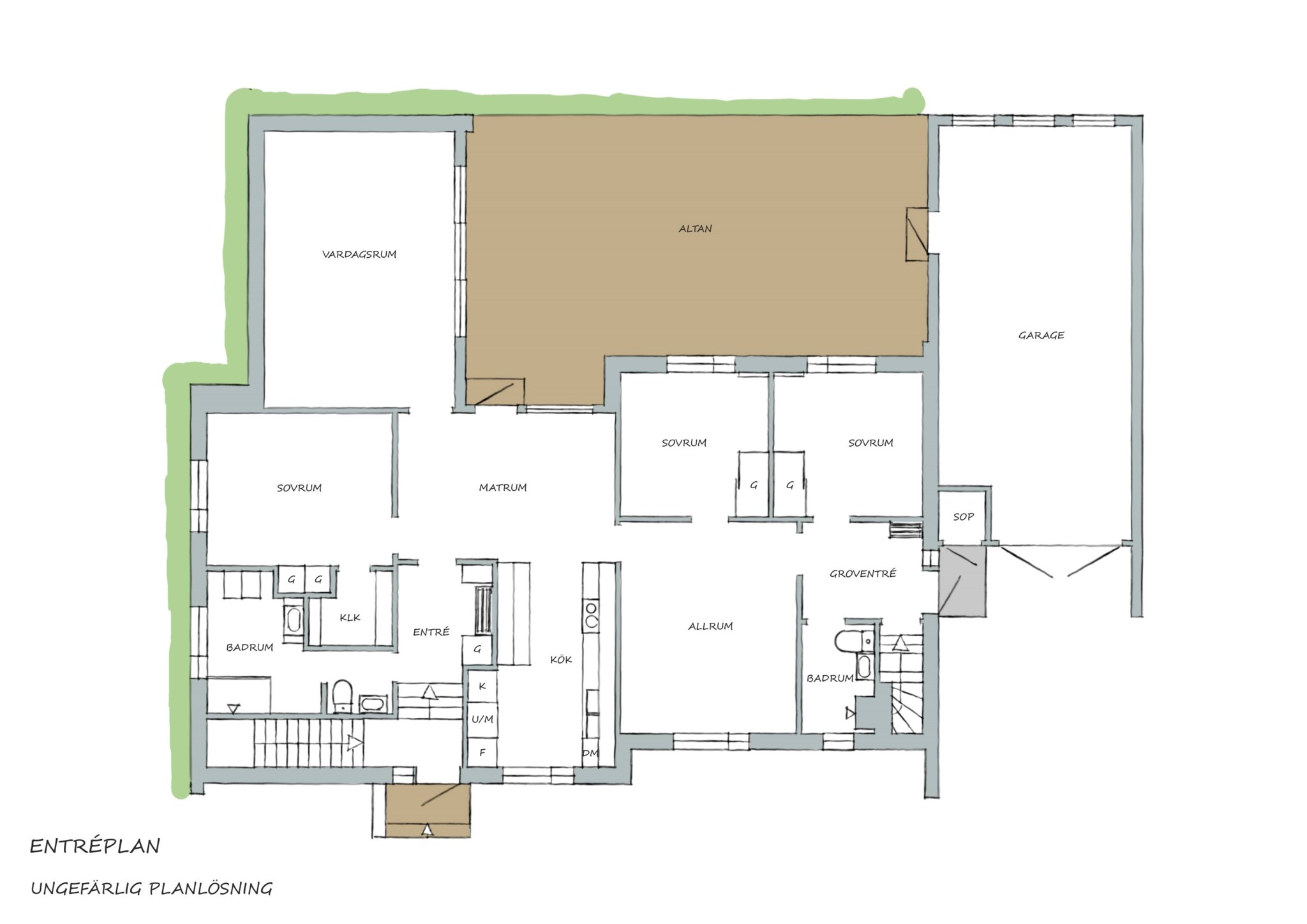
Stensättningen fram till ytterdörren är stilrent och fint matchad med husets nya putsade fasad. Dörr och entréparti nya, precis som fönstren i hela huset. Fin belysning av fasaden dessutom, om du kommer om kvällen. Du kliver in i markplan men resten av entréplanet ligger fyra trappsteg upp. Insteg och trappa i klinker, men sen tar ekparketten över. Husets första källartrappa hittar du direkt till vänster, liksom det stora badrummet när du kommit uppför trappan.

Köket och matplatsen

Matplatsen blir verkligen husets epicentrum med köket precis intill, och det stora trädäcket i husvinkeln utanför. Ljuset rätt igenom här på ett fint sätt, särskilt nu på vintern när södersolen står lågt och hittar långt in över golvet. Köket med massiva ekluckor och lådfronter, som visserligen har några år på nacken, men kvaliteten är svårslagen, och trenden talar ju för trä igen. Bänkskivorna i mörkt laminat också svåra att slita ut. Stort fönster mot lilla Hermelinstigen som är som en slinga i kvarteret.

Citat 2

"För en aktiv barnfamilj är både hus och läge perfekt – nära skolor, skogen och alla aktiviteter man kan tänka sig."

"För en aktiv barnfamilj är både hus och läge perfekt – nära skolor, skogen och alla aktiviteter man kan tänka sig."

Citat 2

Vardagsrummet

Detta rum upptar nästan hela vinkeln av villan med det stora glaspartiet mot väster och in mot gården. Alltså diskret mot gatan och insynen helt obefintlig. Parketten är husets ursprungliga som legat på plats i nästan 60 år – fint skick alltjämt. Planlösningen är som du ser relativt öppen med fint flöde till matplats, kök och hall, men rumsfunktionerna ändå väl definierade och med en egen sfär. Fönsterpartiet i vardagsrummet är bytt precis som övriga i huset. Luftvärmepumparna kan både generera kyla och värme. Murstocken passerar i hörnet och det borde inte vara något problem att koppla på en kamin om du drömmer om det.

Sovrummen

Stora sängkammaren ligger i husets östra ände, mot morgonsolen, med mycket plats för dubbelsängen och mycket plats i garderoberna. I husets andra ände hittar du sedan två mindre barnrum som är i princip lika stora och spegelvända till varandra. Här vetter fönstren mot söder och mot den talliga dungen som sparats mitt i villakvarteret på ett ansvarsfullt sätt för både barn och fåglar. Nyare laminatgolv i dessa två rum. En trappa ner används ett av rummen i nuläget som sovrum, men det finns ett par rum till som på det ena eller andra sättet skulle kunna bereda sovplatser till både egna familjen och gäster.

Citat 3

"Trädgården har vi försökt att göra så enkel som möjlig att sköta, och så enkel som möjlig att njuta av."

"Trädgården har vi försökt att göra så enkel som möjlig att sköta, och så enkel som möjlig att njuta av."

Citat 3

Allrummet

Att allt är dubbelt i detta hus gör det osedvanligt familje-flexibelt. Detta stora allrum är definitivt som ett andra vardagsrum, eller ett tredje om du räknar med möjligheterna nere. Ligger i husets västra ände mot groventrén från garagesidan. Fönstret vetter mot gatan, men räkna med södersol också från de två barnrummen, om dörrarna får stå öppna. Rummet kommer snabbt att bli en fredad zon där regimen upprätthålls av husets tonåringar. Med dubbla källartrappor dessutom kommer du ner även i denna ände av huset. Som sagt, mycket flexibelt.

Badrummen

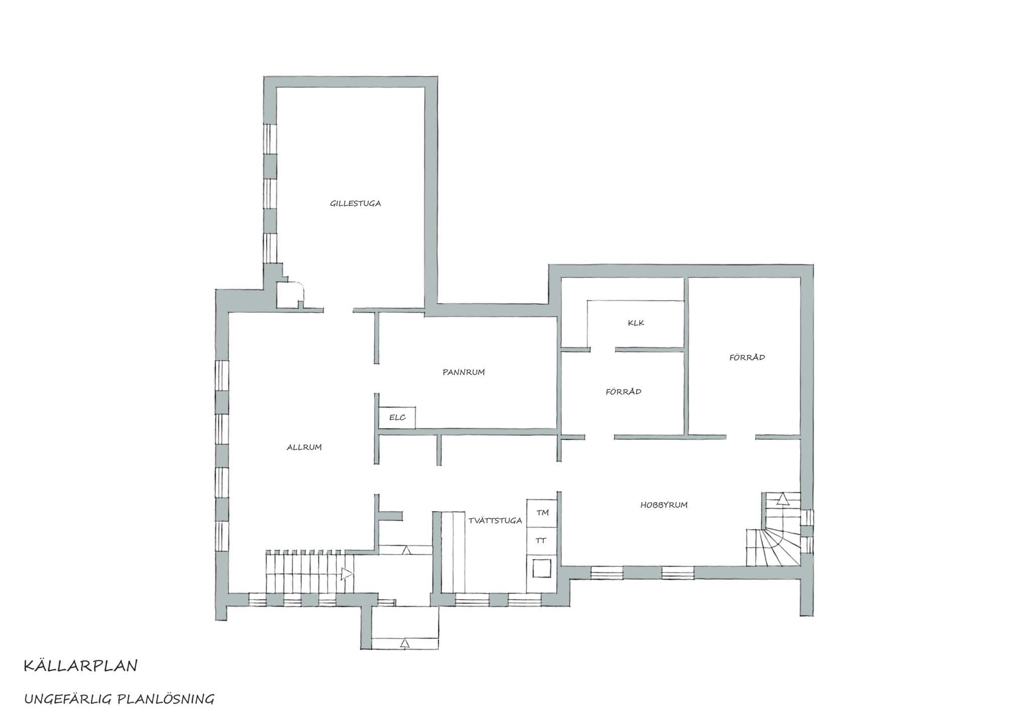
Två badrum på entréplanet och båda i mycket fint renoverat skick. Lite olika i stilen, men neutrala i färg och material för att stå emot framtidens spretande trender på ett bra sätt. Även badrummen ligger i var sin ände av huset, smidigt tillgängliga från både de sociala delarna av huset och sovrummen. Båda dessutom smidigt placerade vid varsin trappa, för enkel kommunikation upp och ner. Drömmer du om en egen spa-anläggning, står hela gamla ”pannrummet” till förfogande nere.

Citat 4

"Med två barn har vi kunnat använda källaren ganska fritt genom åren, med både gym och ett stort hemmakontor."

"Med två barn har vi kunnat använda källaren ganska fritt genom åren, med både gym och ett stort hemmakontor."

Citat 4

En trappa ner

Gästrum och gym, bra tvättstuga och stort kontor, ja, det är något av det du hittar en trappa ner i detta stora hus. Och faktum är att det finns två stora rum och utrymmen ytterligare som du kan nyttja på lite olika vis – kanske fler sovrum och varför inte ett eget spa. Tvättstugan med alla resurser som krävs för en stor familj från första dagen du flyttar in i huset. Gamla originallampor i taket och även golvet original och i bästa skick. Här och där färgglatt betongglas mellan rummen som lyser upp när du tänder i nästa rum. Det nuvarande gästrummet var nog tänkt som den klassiska gillestugan som alla hus hade vid tiden, för här finns en öppen spis. Minst två sovrum möjliga här nere på ett smidigt sätt tack vare de två trapporna. Fönstren extra stora för att maxa ljuset in, och minska källarkänslan.

Garaget

Garaget står helt intill huset och skapar ytterligare en vinkel som ramar in gården på baksidan mot dungen på allmänningen. Ett stort enkelgarage där du kan få in både bil, cyklar och annat lösöre även när åren gått, bara du har lite disciplin och tar dig till närbelägna Erikshjälpen och sortergården med jämna mellanrum. Plats för arbetsbänk och verktyg prydligt på väggen, för den som önskar. Dörr ut på baksidan till trädgård, uteplats och friggebod. På uppfarten parkerar du lätt tre bilar när du får besök.

Citat 5

"Strömsbergs naturreservat är så vackert – vinter och sommar – och det finns alltid en ny stig att upptäcka med barnen."

"Strömsbergs naturreservat är så vackert – vinter och sommar – och det finns alltid en ny stig att upptäcka med barnen."

Citat 5

Planritning

Mäklaren informerar

Nuvarande ägare har bott i huset sedan 1995. Nedan följer lite information som kan vara bra att ha med sig vid ett köp.

2011 genomgick huset en större renovering utvändigt. I samband med detta utfördes dränering, takomläggning, ny garageport samt ny fasad och taksarg. Fönstren byttes ut 2004 (entréplanet) samt 2012 (källarplanet).

Köket som kommer från Marbodal (Sentens) färdigställdes 2006. Här finns maskinell utrustning i form av induktionshäll (2012), spisfläkt (2006), ugn (2018), mikrovågsugn (2018), diskmaskin (2016), kyl (2025) samt frys (2025). Det finns även ett extra kylskåp i källaren som installerades 2014.

Såväl det stora som lilla badrummet renoverades 2008. Båda badrummen är utrustade med elburen golvvärme. Här installerades bland annat nya takduschar och toalettstolar 2025 och även nya takspottar (LED) i stora badrummet.

I tvättstugan finns en tvättmaskin samt torktumlare. Både dessa är av märket Electrolux och installerades 2023.

Två luftvärmepumpar som betjänar tre inomhusdelar installerades i huset 2019. Varmvattenberedaren är från 2013 och av märket NIBE.

Bland övriga renoveringar märks: Nya innerdörrar entréplan (2004), fasadbelysning (2012), nya ytterdörrar (2012), nya elradiatorer (2012-2025), markanläggning och nya altaner (2020-2021), nytt klinkergolv groventré (2021), friggebod nytt plåttak (2023) och målning (2025).

Fastigheten är ansluten till Jönköpings öppna fibernät, Wetternet. Läs gärna mer på www.wetternet.se för information om aktuellt tjänsteutbud.

Huset har ett hemlarm från Sector Alarm. Möjlighet finns att överta detta om så önskas.

Solens strålar hittar redan på morgonen till altanen vid friggeboden. Den stora altanen utanför vardagsrummet har sol från cirka kl 10 fram till kvällen. En altan som inbjuder till många härliga grillkvällar under sommartid.

När nuvarande ägare flyttar lämnar de kvar garderober, takarmaturer i källaren, rullgardiner, det extra kylskåpet i källaren, mangel och möbel i tvättstugan samt hyllorna i förrådet. För att förenkla trädgårdsskötseln ingår även Automowern i köpet. Om så önskas kan ägarna också lämna kvar utemöbler samt diverse trädgårdsredskap och verktyg.

Bilder

Planritning

Ljungarum

Det mest unika med Ljungarum och Strömsberg är den öppna famnen mot naturreservatet som tar vid nästan precis där radhusen slutar. Kilometervis med stigar genom behaglig lövskog.

Vill du bevaka fler bostäder som denna?