Logotyp

Huskvarna Jutaholm

Jutegården 8

Alla bilder
Naturläget

Vändplan, berg och brusande å

Jutaholm är det lite hemliga bostadsområdet mellan Egnahem och Stensholm kan man säga. Och Jutegården ligger ytterst naturskönt vid egen vändplan med den brusande ån inom hörhåll och fåglar som kvittar i träden runt om. Huset ytterst barnvänligt dessutom, med tre sovrum i nuläget och stora sociala ytor både uppe och nere. Stora glasytor snappar upp naturen på ett fint sätt även inne. Detta känns som att bo i änden av en skogsväg, men du har skolor och förskolor på nära gångavstånd både på Stensholm och Fagerslätt. Dessutom ny cykelväg både ner till Huskvarna och bort till Lekeryd.

En Smålandsvilla byggd 2008 med ett fristående dubbelgarage på tomten. Mjuka klippor sticker upp i trädgården, men det finns plats för både rabatter och odlingslådor om dina gröna fingrar söker inspiration. En naturlig liten damm blänker också i trädgården. Om kompassen stämmer så bör du kunna ligga och sola på klipporna i bra uv-vinkel på eftermiddagen precis som om det vore i Bohuslän. Ut på husets gavel och uteplats kommer du både från vardagsrum och köket och här sitter du i soligt läge från lunch till kvällen, och låter grillröken stiga till väders utan att det stör någon.

Snabbfakta 2-5 Snabbfakta 1-28

Exceptionellt naturläge på Huskvarnas höjder, med skogen och vattenfallet precis intill vändplanen längst in på återvändsgatan. Huset byggt 2008 med ljusa sociala ytor både uppe och nere, tre sovrum, och fler om du behöver.

Adress Jutegården 8
Område Huskvarna Jutaholm
Fast.beteckning Stensholm 1:293
Bostadstyp Friliggande villa
Upplåtelseform Friköpt
Antal rum 5 rum och kök
Boarea 164 kvm
Tomtarea 1 037 kvm
Byggår 2008
Pris 4 800 000 kr / bud

Vill du veta mer?

Vill du veta mer?

Robert Csiki Ansvarig mäklare 0723-253000 [email protected] Mer om Robert

Det är 4 dagar kvar till visning.

Söndag 11 Januari med start kl 11:15
Tid för visning publiceras senare. Välkommen!
Tisdag 13 Januari
Tid för visning publiceras senare. Välkommen!

Boka visning

Här kan du anmäla dig till visning för Jutegården 8, Huskvarna Jutaholm.
* obligatorisk uppgift

Bostadsbeskrivning

Mäklaren informerar

Nuvarande ägare har bott i huset sedan 2021. Nedan följer en kortare sammanfattning av information som kan vara bra att ha med sig vid ett köp.

Huset är byggt 2008 och är från SmålandsVillan, hustyp Kalmar. Det övre planet inklusive badrummet färdigställdes 2012.

Ny frånluftsvärmepump installerades hösten 2020, en elbilsladdare från Evify installerades 2024 och ny entrédörr monterades 2024.

Samtliga vitvaror i köket är från 2008 och är av märket Bosch. Förutom diskmaskinen från Electrolux 2023 och kylskåpet från Siemens 2024.

Torktumlare från Electrolux 2022 och en ny tvättmaskin köps in tills den nya ägaren tar över huset.

Eldstaden i vardagsrummet är eldningsbar då sotning och brandskyddskontroll utförts löpande.

Fastigheten är ansluten till Jönköpings fibernät. Läs gärna mer på www.wetternet.se för mer information om aktuellt tjänsteutbud. Aktuell anslutningskostnad uppgår till 70 kronor per månad.

Ett äldre oisolerat fristående dubbelgarage finns på tomten med dubbla biluppställningsplatser utanför. Goda förvaringsmöjligheter finns här för bl.a. trädgårdsverktyg och andra redskap.

Väl tilltagen trädgård för att vara en tomt med berg i dagen dessutom. På den soligaste platsen, på husets sydvästra gavel brer trädäcket ut sig på stor yta.

Båda badrummen har behaglig golvvärme för extra komfort (elektrisk).

Jordfelsbrytare finns installerad till elcentralen som finns i tvättstugan.

Huset

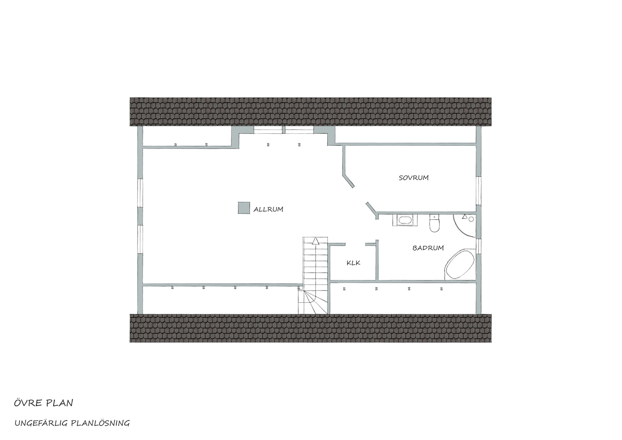
Detta är en Smålandsvilla byggd 2008 på en gjuten platta på mark. Bjälklag, väggar och fasad i trä. Huset byggt i ett och ett halvt plan med en stor öppen yta uppe med både takfönster och takkupa i snedtaket. Ett rum som också skulle gå att dela av i ytterligare ett, två eller tre sovrum vid behov, om familjen inte är till freds med de tre som finns i dagsläget. Enhetligt brett ekparkettgolv i helstavar i entréplanet och ett ljusare golv uppe i ask. Badrum både uppe och nere, men badkaret hittar du där uppe. Kaminen i vardagsrummet kan nog höja tempen i nästan hela huset när värmen kan stiga uppför trappan som här.

Tomten & uteplatsen

Relativt platt gräsmatta för att vara en tomt med berg i dagen dessutom. På den soligaste platsen – på husets sydvästra gavel – brer trädäcket ut sig på stor yta. Mot gatan prydlig häck som inte fått tillåtelse att växa sig speciellt hög, och det finns inte så mycket insyn att skydda sig från för här kommer det varken bilar eller flanörer i någon större mängd. Men om du vill leva mer dolt för omvärlden låter du den smita högre och högre år för år. Annars är tomten i princip helt öppen mot skogen, där du på liten stig kan leta dig närmare stora vattenfallet i Ådalen eller upp utmed den lilla bäcken mot Fagerslätt.

Citat 1

"Barnen har verkligen tagit över vändplanen med cyklar och bollar; sällan någon kör in här på vägen med bil."

"Barnen har verkligen tagit över vändplanen med cyklar och bollar; sällan någon kör in här på vägen med bil."

Citat 1

Hallen

När Västanhem kommer på besök slår den låga vintersolen långt in över den breda ekparketten. Både via fönstret i hallen, men även via kök och vardagsrum som välkomnar i en öppen men väl definierad planlösning. Även trappan upp till höger är ljus och solig och lockande tack vara ett takfönster mot söder precis ovanför trappan. Du får dessutom siktlinje rätt igenom vardagsrummet, ut i trädgården och de mjuka klipporna där. Ytterdörren nästan ny.

Vardagsrummet

Här landar du rofyllt i soffan med blicken fixerad i antingen i skogen utanför dörr och fönster, eller i kaminens fladdrande sken om kvällen. Med den öppna planlösningen kommer du mötas av värmen redan i hallen. På golvet ligger den breda kvistfria ekparketten över alla ytorna här – i vardagsrummet, i köket och hallen, men också in i de två sovrummen nere. Den sociala kompetensen hög och du har bra kontakt med dem som stökar i köket, och vice versa. Men även med barnen som stojar en trappa upp. Plats för både soffa och stort matbord. Du har eld i sikte i de flesta vinklar.

Citat 2

"Vi hade planer på att bygga ett sovrum till uppe och göra vardagsrummet nere ännu större i stället."

"Vi hade planer på att bygga ett sovrum till uppe och göra vardagsrummet nere ännu större i stället."

Citat 2

Köket

Egen direktdörr ut på uteplatsen från köket, men också en från vardagsrummet. Köket delvis öppet även mot vardagsrummet. Köket med laminatbänk och en svagt ljusgrön glasmosaik på väggen som ger en fräsch färgton till helheten som för övrigt går i pudervitt. Det avlångt liggande fönstret vetter mot söder och är mycket tacksamt för brickan med alla kryddväxterna på. Och för arbetsljuset in över bänkskivan. Men du slipper att få ljuset rätt i ögonen om du inte tillhör husets barnaskara. Vill du ha matbord både här i köket och vardagsrummet, går det bra. Vitvarorna bytta på senare tid.

Sovrummen

Huset har i dagens planlösning tre sovrum redo direkt – två på entréplanet och ett uppe. Nere ligger rummen med fönstren mot norr och mot baksidan av huset, alltså lugnaste läge du kan tänka dig för nattsömn. Sovrummet upp ligger med fönstret i husets östra gavel och du skjutsar in sängen i det mysiga snedtaket. Kattvinden tillgänglig för förvaring här dessutom. Om du behöver ytterligare ett eller två sovrum när familjen växer, så kan allrummet uppe lätt delas av som du ser. Det blir social yta över ändå som du kollar in planskissens streckade linjer.

Citat 3

"Går du ut och ställer dig i trädgården så hör du hur det brusar från den lilla bäcken på väg ner mot ån."

"Går du ut och ställer dig i trädgården så hör du hur det brusar från den lilla bäcken på väg ner mot ån."

Citat 3

Badrummen

Det stora badrummet hittar du en trappa upp där du har både dusch och ett stort badkar i hörnet lite in i snedtaket. Nere är badrummet något mindre och med dusch. Helkaklat både uppe och nere, och föredömligt val av färger, material och inventarier som står sig neutrala när det kommer till trendens skiftningar och nycker. Golvvärmen doserar du efter samvete och njutningslystnad. Och kanske efter elpriset för dagen.

Tvättstugan

Via ytterdörren på husets gavel kommer du in i husets groventré som också blir din tvättstuga. På golvet ligger det en våtrumsmatta som är lätt att städa av när du kommer in med leriga barn och hundar. Plats att arrangera för mottagandet av allehanda ytterkläder, träningskläder och olika skodon. En ljus tvättstuga med egen tvättho och fönster mot södersolen. Husets värmealstrare står också här och levererar varmvattnet till både golvvärmen och till duscharna och handfaten. Tvättmaskin och tumlare relativt nya.

Bilder

Planritning

Huskvarna Jutaholm

Du befinner dig cirka 150 höjdmeter upp från Vättern och Huskvarna stad. Här bor du nära Huskvarnabergets alla stigar och vandringsleder som är ett eldorado för vandrare, löpare och mtb-cyklister.

Vill du bevaka fler bostäder som denna?