Logotyp

Ekobyn - Ljungarum

Korgebovägen 95

Alla bilder
Ekobyn

En vackrare grönare värld.

Jönköpings Ekoby är som en egen värld vid en solvänd äng, och med ryggen mot Strömsbergs naturreservat. Vardagsrummet öppet i nock med riktiga skurgolv och vattenburen golvvärme över alla ytor. Vackra hus och snåla hus, men som slösar med charmen och smarta detaljer. Glasverandan är den kanske mest uppenbara. Isolerad, men inte uppvärmd, den låter sig dock snabbt värmas upp av solen redan i februari-mars, och lätt att skjuta undan glaspartiet. Alla fönstren är monterade med relativt låg bröstning, så att du ser ut i markhöjd även om du halvligger i soffan.

Huset är i utmärkt skick och välvårdat av nuvarande ägare som bott här sedan visionen blev till verklighet 1994. Ekobyn visar vilka värden som går att skapa när arkitekterna får vara delaktiga hela vägen från idéstadiet. Trots att mycket i huset är original så är det slående hur tidlöst funktionellt det är. Huset har tre sovrum, sovloft över köket, badrum både uppe och nere. Ett större och ett mindre förråd på baksidan, där det större kan bli ett extra sovrum vid behov. Till varje hus finns också en rejäl odlingslott, utöver trädgården. En stiligt stor bystuga förvaltas av samfälligheten.

Snabbfakta 2-33 Snabbfakta 1-61

Du vackra, kloka, snåla. Ovanligt tillfälle att flytta till eftertraktade Ekobyn precis intill Strömsbergs naturreservat. Högt i tak och djupa fönstersmygar, såpade plankgolv och en glasveranda som fångar solen i stor volym.

Adress Korgebovägen 95
Område Ekobyn - Ljungarum
Fast.beteckning Ärjkroken 24
Bostadstyp Friliggande villa
Upplåtelseform Friköpt
Antal rum 5 rum och kök
Bo & biarea 116 + 13 kvm
Tomtarea 580 kvm
Byggår 1994
Pris 4 100 000 kr / bud

Vill du veta mer?

Vill du veta mer?

Kim Eriksson Ansvarig mäklare 073-260 00 20 [email protected] Mer om Kim

Det är 7 dagar kvar till visning.

Söndag 12 April med start kl 11:00
Varmt välkommen att boka in er på visning genom bokningsformuläret eller genom kontakt med ansvarig mäklare.
Måndag 13 April med start kl 17:00
Varmt välkommen att boka in er på visning genom bokningsformuläret eller genom kontakt med ansvarig mäklare.

Boka visning

Här kan du anmäla dig till visning för Korgebovägen 95, Ekobyn - Ljungarum.
* obligatorisk uppgift

Bostadsbeskrivning

Husen i byn

Byn består av 12 parhus, alltså 24 hushåll, plus en gemensam storstuga, men mer om den senare. Det fina är att du uppfattar parhusen som ett stort pampigt hus – i storlek som en mindre herrgård. Gott om luft mellan husen dessutom vilket ger stor trädgård på tre sidor. I detta fall har du morgonsolen på framsidan, kvällens på baksidan. Husen finns i tre versioner, varav detta är mellanstorleken med hela vardagsrummet öppet upp i nock och med ett högt placerat så kallat lunettfönster. Ägarna till just detta hus gjorde ett smart tillval i form av ett loft med snedtak över köket, och fick så ett gästrum med stort takfönster.

Del II

Huset är byggt i två plan på torpargrund, med faluröd fasad och bjälklag i trä, tre sovrum, två badrum och ett luftigt loft en trappa upp. Loftet räknas inte som boyta, men är mycket användbara kvadrat ändå. Golvvärme både uppe och nere. I vardagsrum och på glasveranda är det öppet upp i nock vilket innebär ca fem meters takhöjd. Vattenburen värme från en nyare luft-vattenvärmepump. Den öppna planlösningen innebär också att den stora kaminen i vardagsrummet kommer till sin rätt och kan eldas regelbundet för att värma både uppe och nere. Väggarna rejält isolerade, för att inte tala om taken som är ”fodrade” med näst intill 60 cm ekofiber. Fasaden målad med faluröd slamfärg, innerväggarna med äggoljetempera.

Citat 1

Här fanns precis allt som vi ville ha när vi letade hus, lugnet, skogen, miljötänket och så tryggheten för barnen.

Här fanns precis allt som vi ville ha när vi letade hus, lugnet, skogen, miljötänket och så tryggheten för barnen.

Citat 1

Glasveranda

Glas nästan från golv till tak, ett härligt extra vardagsrum, som badar i sol tack vare rätt pricksäkert söderläge. Fönstren går att ställa i vädringsläge vilket kan vara klokt på sommaren för att få lite omsättning på luften. Glasverandan är alltså helt ouppvärmd – förutom av solen då. Isoleringen lite nättare än i övriga huset, men både väggar och stengolvet konserverar garanterat solenergin långt in på natten. Vikdörren med treglasfönster in till köket håller du troligen stängd hela vintern, men kan stå helt öppen från maj till oktober å andra sidan. Även nysådda gurkor och tomater kommer må bra i detta vackra rum.

Trädgård

Här bor du lite i utkanten av byn med en egen vy upp mot fälten. Ekarna paranta utanför och det är nog asp, rönn och hassel du ser dessutom, och byns fotbollsplan ligger alldeles intill. I din egen trädgård har du ett antal fruktträd utmed gaveln som ger äpplen av två olika slag och sen även körsbär. Rabatter, träd och buskar har hunnit få fint liv här efter 30 år, men vill du odla mer finns det plats för det i trädgården. Sen finns det även en odlingslott om 200 kvadrat som ingår till varje hus. Dessa lotter ligger samlat mellan byn och skogen bakom. På tomten finns sen en vedbod och ett plåtklätt odlingsbord.

Köket

Här bor du lite i utkanten av byn med en egen vy upp mot fälten. Ekarna paranta utanför och det är nog asp, rönn och hassel du ser dessutom, och byns fotbollsplan ligger alldeles intill. I din egen trädgård har du ett antal fruktträd utmed gaveln som ger äpplen av två olika slag och sen även körsbär. Rabatter, träd och buskar har hunnit få fint liv här efter 30 år, men vill du odla mer finns det plats för det i trädgården. Sen finns det även en odlingslott om 200 kvadrat som ingår till varje hus. Dessa lotter ligger samlat mellan byn och skogen bakom. På tomten finns sen en vedbod och ett plåtklätt odlingsbord.

Vardagsrummet

Här öppnar sig takhöjden dubbelt upp igen. Höga fönster mot söder och väster. Dessutom ett högt lunett-fönster mot söder som låter kvällssolen sticka in en distinkt stråle genom rummet utan att störa. När du satt dig – eller till och med lagt dig – i soffan, märker du att fönstren sitter lite lägre så att du ser ut på bondens åker även när du ligger lågt. Och små barn kommer snabbt upp i ögonhöjd med den djupa fönsterbrädan och kan se och längta ut i det gröna. Samma såpvita skurgolv fortsätter hela vägen till köket. Kaminen från Contura är en större pjäs, vald för att på allvar bidra till uppvärmningen, inte minst uppe.

Citat 2

Här lever du verkligen med bondens år och arbete, följer växtligheten, förra året var det raps här utanför.

Här lever du verkligen med bondens år och arbete, följer växtligheten, förra året var det raps här utanför.

Citat 2

Badrum

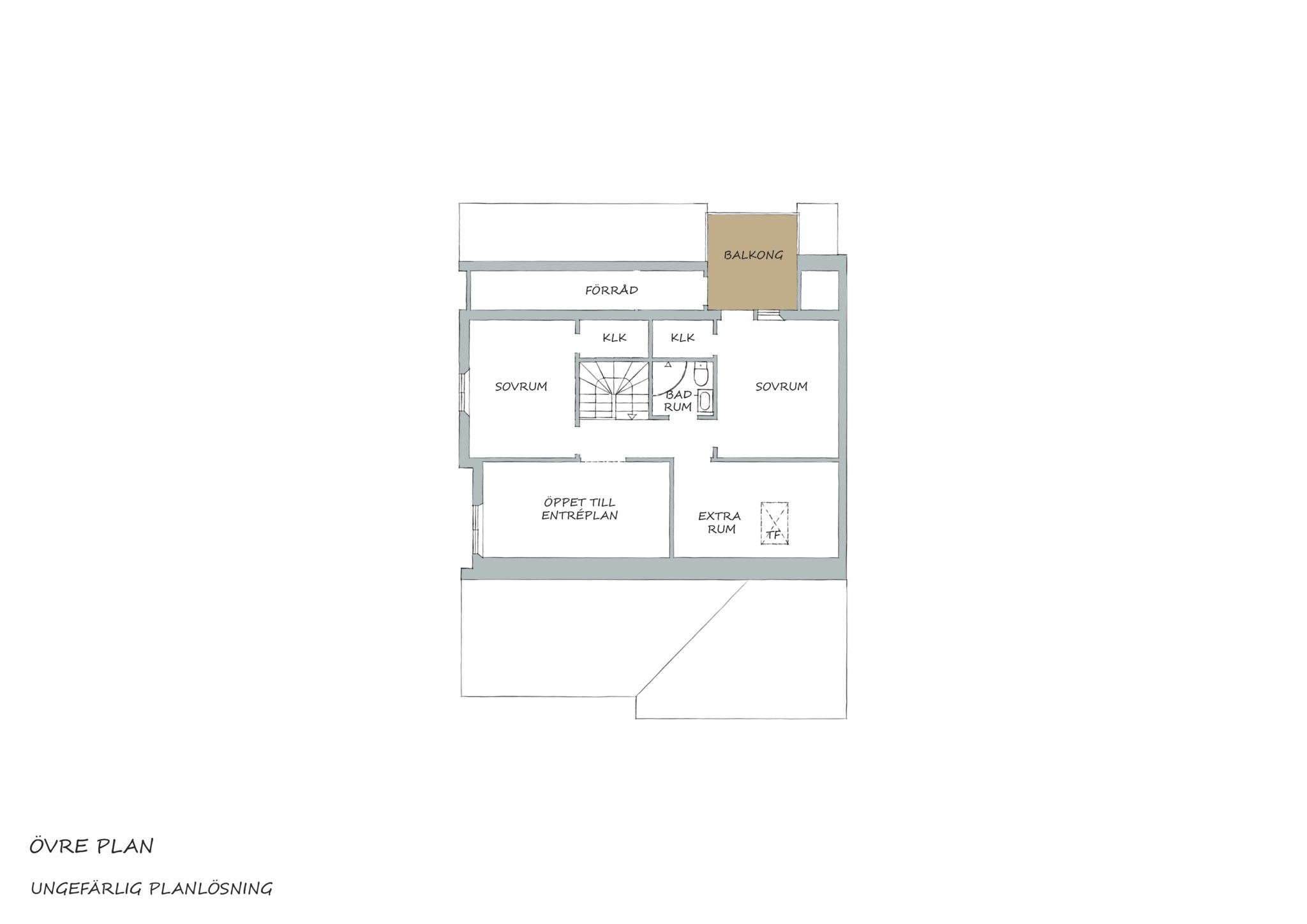
Med två eller till och med tre sovrum uppe, var det redan i början av 1990-talet självklart med dubbla badrum. Båda badrummen i enhetlig stil, neutralt vitt 15x15 kakel på väggarna och våtrumsmatta på golvet vilket brukar vara klokast på träbjälklag. Badrummet nere är dock lite större som du ser på planritningen och plats för badkaret där dina barn kanske tar sina första små simtag och kanske får smaka en kallsups överraskning. Golvvärme i båda badrummen precis som i resten av huset, men bara vädringsfönster nere. Huset hade från början separerande toaletter och en avföringstank i källaren, men är sedan många år fullt ut anslutet till kommunalt vatten och avlopp.

Tvättstuga

Ett viktigt nav i barnfamiljens vardag, här måste både förvaring och maskiner prestera på topp varje dag. Och det finns alla förutsättningar för det här. Det som också fungerar är husets värmeverk som är ett luft-vatten-system som är nästan helt nytt. Värmepump och heltäckande golvvärme är en bra kombo. Fint att ha siktlinje genom huset från glasverandan ut genom glasdörren på baksidan. Den andra dörren i tvättstugan leder till kallskafferiet som du kommer uppskatta enormt, byggt i norrläge på en gjuten platta som håller låg temperatur året runt. Tvättstugan är den perfekta groventrén med bra förvaring. Leriga skor och stövlar ställer du med fördel utanför långt in under tak.

Sovrummen

Ett sovrum nere och två uppe, plus loftet, men mer om det senare. Ett av rummen lite större så att det blir gott om plats för dubbelsängen, men alla rummen redo för en bredare säng och familjen kan rotera runt i huset, för omväxlings skull eller efter behov. Stora sängkammaren har som du ser både en extra klädkammare och utgång till egen balkong. Även rummet nere har egen klädkammare. Loftet blir ett stort extra rum, men med vissa begränsningar i takhöjden. Men också bedårande charm tack vare takfönstret. Lägger du sängarna direkt på golvet så blir det sobert som i inredningsmagasinen.

Balkongen

Dagens sista solstrålar hamnar på balkongen, som du hittar ut på från ett av sovrummen uppe. Men det kommer bli svårt för balkongen att konkurrera med glasverandan i världsklass på framsidan. Du kommer nog vädra täcket tusen gånger oftare än du sitter här ute och dricker kaffe. Balkongens fördel är nog främst som mysfaktor i sommarnatten, att du somnar tryggt med öppen dörr och låter skogens ljud hitta in. Balkongens räcke är helt nytt, nuvarande ägare har i alla år sett om sitt hus, och bytt det som behöver bytas. Från balkongen hittar du ett förråd eller också kallad kattvind.

Citat 3

I vardagsrum och på glasveranda är det öppet upp i nock vilket innebär ca fem meters takhöjd.

I vardagsrum och på glasveranda är det öppet upp i nock vilket innebär ca fem meters takhöjd.

Citat 3

Bystugan och samfälligheten

Ekobyn byggdes i brf-form, men husen är sedan många år friköpta. Från början fanns lokalt avlopp och egen brunn, men husen är numera anslutna till kommunalt VA. Brunnsvattnet används nu bara till vattning. Bystugan bokas vid större fester och högtider; här bänkar du lätt upp 50 sittande gäster i stora salen som också är öppen i nock, med köket precis intill. Två gästrum finns också för övernattande gäster. Badrum och bastu – fattas bara annat! Garage finns till alla husen, dessa har nu el-infrastruktur som ger innehavaren möjlighet att till egen bekostnad montera laddbox. Elbilar i ekobyn känns ju helt självklart.

Förråd

Arkitekterna bakom husen heter Peo Oskarsson och Jan Moeschlin, två mycket engagerade skapare som har ritat in bra förvaring både här och där. Både till höger och vänster om groventrén har du förråd, båda dessutom med lite extra vindsutrymme. Det stora förrådet med trägolv och inredd verkstad. Under golvet i det lilla förrådet, finns ett källarutrymme dessutom. Från balkongen hittar du en lucka ut i kattvinden. Några familjer i byn har inrett en del av det stora förrådet till ett extra sovrum med direkt passage in i sovrummet nere.

Omgivningen

Härligt med ett helt bostadsområde som sätter stora och små människor främst alla dagar, året runt. Redan i förskolan blir barnen väl bekanta med träden, djuren, och krypen. Och strax bakom byn börjar stigarna och spåren som tar dig allt högre upp mot Skinnersdal som ligger ovanför Strömsbergs naturreservat. Här möts odlingslandskapet och lövskogarna i ett kuperat landskap. Den stora bokskogen glöder på hösten och fortsätter göra så ända tills vårens nya löv petar bort de gamla i guld. Lövens första timida grönska är lika skir varje år.

Ljungarum

Ljungarum är en medeltida socken med anor och lång egen historia. Från början alltså inte ett bostadsområde i Jönköping. Kyrkan är från 1200-talet, och står mitt i byn, liksom skolan. Bokskog, grävlingsgryt, vitsippor och ett stort bestånd hybrid-aspar som tydligen planterades för Tändsticksfabrikens räkning en gång i tiden. Du tar dig snabbt upp runt dammar och bäckar till fagra Skinnersdal. Många fina natur- och kulturvärden att upptäcka på nära håll alltså. Inte minst runt ån och Strömsbergs herrgård strax norr om ekobyn.

Planritning

Mäklaren informerar

Nuvarande ägare av huset har bott här sedan området planerades och färdigställdes 1993. Här följer sådant som kan var bra att känna till för dig som köpare.

2022 installerades en luft/vattenvärmepump.
Samma år målades även fönster och dörrar utvändigt.

2012 fick vardagsrummet en Contura-kamin med täljsten – en fin värmekälla som håller värmen länge och höjer trivseln.

Loftet ovanför köket byggdes 1994 och skapar ett praktiskt extrarum (ej inräknat i boarea).

Energideklaration i klass B – ett fint betyg som i vissa fall kan ge möjlighet till grönt bolån, beroende på bankens villkor.

Till huset hör en odlingslott för dig som vill odla och njuta av det gröna.

Huset är beläget i ett öppet söderläge mot fria ängar, vilket ger fint ljusinsläpp och kvällssol över trädgårdens baksida. Till bostaden hör garage i länga samt fria parkeringsplatser inom området, liksom tillgång till gemensam bystuga där otaliga kalas och firanden har huserat genom åren här finns ordentligt kök, möjlighet till övernattning, bastu, pingisbord, tvätt med mera.

Bilder

Planritning

Ekobyn - Ljungarum

Ekobyn är välkänd i Jönköping, just för att den är något annat. För helheten, arkitekturen och känslan av att bo i ett område där eftertanke fått ta plats.

Här byter husen sällan ägare. När någon väl flyttar hit, stannar man gärna länge.
Runt husen breder grönskan ut sig, med öppna ytor, gångstråk och en natur som får vara just natur. Samtidigt är det nära till stadens puls, service och kommunikationer. En ovanlig kombination som gör området särskilt attraktivt för den som söker både sammanhang och andrum.
Vill du bevaka fler bostäder som denna?