Logotyp

Bymarken

Narvavägen 45

Alla bilder
Panoramavy

Den stora sparbössan

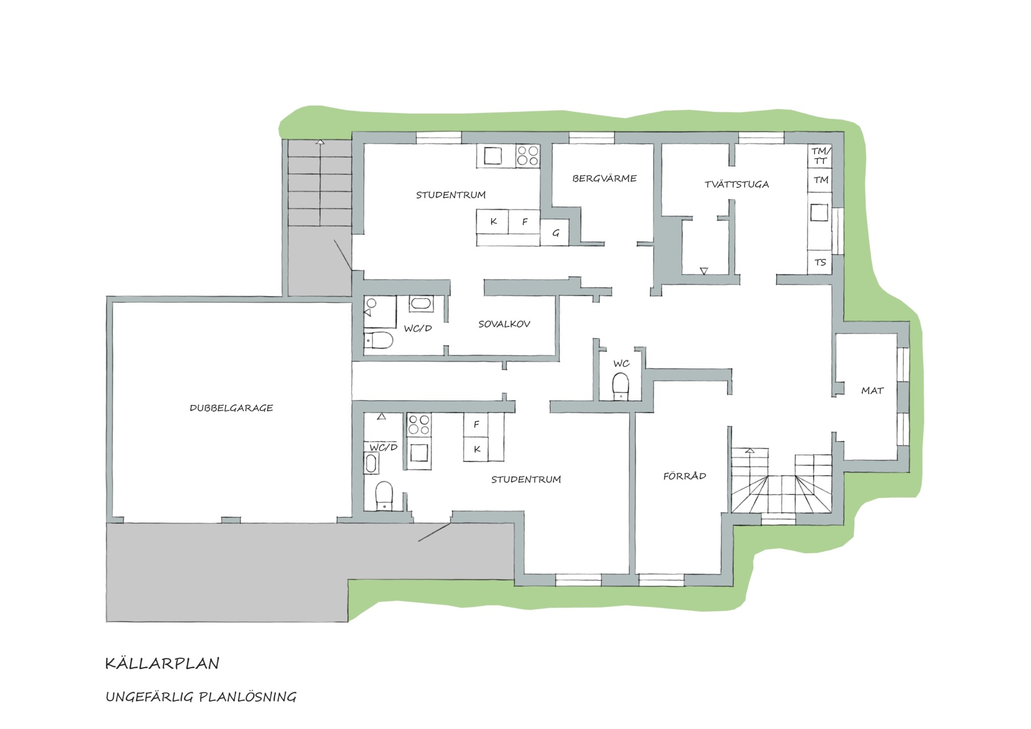
Ett tvåfamiljshus på Bymarken, som du gör klokt i att behålla så även i framtiden. Varje våningsplan mäter ungefär 110 kvadrat, och med vinden inredd dessutom så kan du bo stort i två etage, med svällande utsikt över typ halva Vättern. Sen kan du hyra ut lägenheten nere, samtidigt som du dessutom har två inackorderingsrum i källarplanet för exempelvis studenter. Matematiken enkel, här kan du bo med mycket fördelaktig ekonomi med både svängrum och andrum fullt i paritet med en ordinär villa. Huset är i gott skick invändigt och tegelfasaden lättskött och underhållsfri.

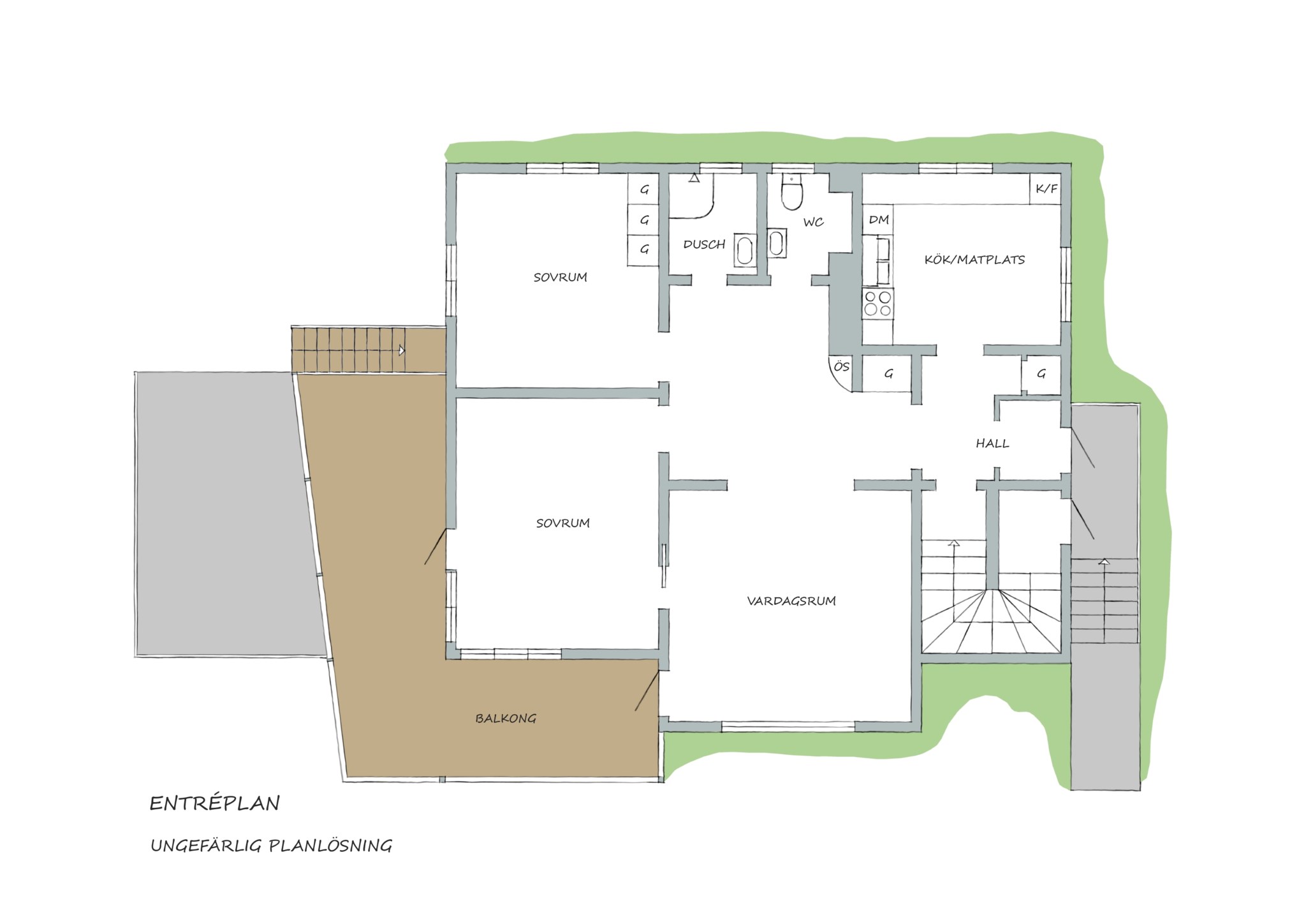
Planlösningen på båda huvudplanen är i princip identisk och bevarad som ursprungligt när huset byggdes i slutet av 1930-talet. Två stora salar med originalparketten bevarad, och ett stort sovrum. Dessa rum kan du disponera på lite olika sätt, efter behov och storlek på familjen. Murstocken ganska centrerad, vilket gör att du får eldstaden inom synhåll från både hall och de stora rummen. Badrum och toalett separerade av praktiska skäl på båda planen men i enhetlig renovering sinsemellan. Den stora förändringen är balkongerna på båda planen, minst sagt hisnande utsikt härifrån.

Snabbfakta 1-3 Snabbfakta 2-39

Ett praktiskt och lättskött tvåfamiljshus med fördelaktig totalekonomi. Som ägare kan du själv disponera olika delar av huset beroende på behov av yta. Dubbla balkonger, dubbelgarage och dubbla studentrum som kan hyras ut.

Adress Narvavägen 45
Område Bymarken
Fast.beteckning Snibben 12
Bostadstyp Friliggande villa
Upplåteleseform Friköpt
Antal rum 9 rum och kök
Bo & biarea 274 + 140 kvm
Tomtarea 832 kvm
Byggår 1939
Pris 8 300 000 kr / bud

Vill du veta mer?

Vill du veta mer?

Johan Marklund Ansvarig mäklare 0723-132000 [email protected] Mer om Johan

Det är 9 dagar kvar till visning.

Söndag 12 Oktober med start kl 11:00
Varmt välkommen att boka in er på visning genom bokningsformuläret eller genom kontakt med ansvarig mäklare.
Måndag 13 Oktober
Kontakta mäklaren för bokning. Varmt välkomna!

Boka visning

Här kan du anmäla dig till visning för Narvavägen 45, Bymarken.
* obligatorisk uppgift

Bostadsbeskrivning

Huset och dubbelgaraget

Stort tvåfamiljshus med cirka 110 kvadrat i varje våningsplan. Byggt i totalt fyra våningar, inklusive källare och inredd vind som adderar till boytan. Huset har stomme och bjälklag i trä och fasaden var från början puts, men har någon gång på 60- eller 70-talet fått en teglad fasad som gör det relativt opåverkat av väder och vind. Fönstren bytta till modernt isolerglas så sent som 2022. Dubbelgaraget är ett tacksamt tillbygge som innebär mycket extra biyta till huset, men det öppnade också för större balkonger och en stor altan som dessutom har en pool i förlängningen.

Trädgården och uteplatserna

Trädgården nästan helt omgärdad av häckar – mot gatan, mot allmänningen på hörnet och mot grannen. Och innanför dessa hittar du både äppelträd och körsbärsträd, vildvin, fläder och syren. Och säkert en hel del annat dessutom. Altanen har fått bre ut sig stort och kan användas av alla i huset hur du än disponerar det. En pool finns också där allt det tekniska fungerar som det ska. Det som gör utsikten grandios redan i markplan är att det inte ligger något hus på andra sidan Narvavägen, för där öppnar sig en perfekt pulkabacke till vintern, som lockar kvarterets barn i stora skaror.

Citat 1

"Det var en tidigare ägare som gjorde den stora tillbyggnationen 2006 med dubbelgaraget och de nya terrasserna, allt ritades av ett lokalt arkitektkontor."

"Det var en tidigare ägare som gjorde den stora tillbyggnationen 2006 med dubbelgaraget och de nya terrasserna, allt ritades av ett lokalt arkitektkontor."

Citat 1

Hallen

Huset disponeras alltså som tvåfamiljshus fortfarande med båda dörrarna bevarade, separata hallar, men gemensam källartrappa. Gamla trappan upp renoverad till finaste skick med vitbetsade steg och vagnstycken. Du kommer snart bli varse att även vindstrappan är lika fin. Du har även en hall när du kommer upp på det stora våningsplanet. Om någon redan tänt en brasa i kaminen kommer du märka av det. Och om någon redan börjat med maten så kommer det också kännas. Det är en relativt öppen planlösning du möts av här uppe, där rummen binds ihop på ett naturligt vis.

Vardagsrum och matsal

Huset är byggt med ett utskjutande parti mitt på – en fronton – det gör att vardagsrummet blir nästan som ett burspråk. Öppet mot hallen där eldstaden står på hörnet, men ändå ett eget definierat rum. Även från dagens matsal har du eldstaden i sikte, men du sitter ändå i ett eget rum. Fiskbensparketten i bra skick och brer ut sig på stora ytor i båda rummen och i hallen däremellan. Dubbla dörrar ut till balkongen om du vill få full effekt av utsikten. Skulle du vilja nyttja matsalen till sängkammare skulle det så klart gå bra.

Citat 2

"Den stora lägenheten på plan två och tre omfattar totalt sex rum om totalt cirka 160 kvadratmeter. Utsikten härifrån är helt fenomenal."

"Den stora lägenheten på plan två och tre omfattar totalt sex rum om totalt cirka 160 kvadratmeter. Utsikten härifrån är helt fenomenal."

Citat 2

Köket

Renoverat med ambition, öppet och socialt, och även härifrån minst sagt skaplig utsikt, fast mer mot norr. Bänkskivor i grå granit runt om och på den sociala köksön mitt i rummet med spisen centrerad. Förutom induktionshällen även en gasplatta. Fiskbensparketten följer med in hit från hallen. Alla vitvaror från Miele, inklusive den inbyggda espressomaskinen. Plats för ett rätt stort matbord som du nog gärna sitter vid till vardags, men också lätt att tänka större och flytta ut i matsalen, eller på balkongen när vädret så tillåter.

Sovrummet

Ett stort sovrum som livet var planerat när huset byggdes. På golvet ligger laminat just nu, men frågan är vad som kan hittas inunder, kanske ett plankgolv? En stor skjutdörrsgarderob bör räcka rätt länge till förvaringen innan det blir fullt. Den står löst på golvet, men kommer att lämnas kvar av nuvarande ägare. Fönster både mot söder och väster. Med tanke på att vinden är inredd och renoverad så har du ytterligare sovrum tillgängliga en en trappa upp. Vill du göra matsalen till sängkammare vore det också möjligt.

Citat 3

"För bara några veckor sen hade jag en tekniker ute från Folkpool och bytte pump, filter och andra delar till poolen så nu är den redo inför sommaren -26."

"För bara några veckor sen hade jag en tekniker ute från Folkpool och bytte pump, filter och andra delar till poolen så nu är den redo inför sommaren -26."

Citat 3

Badrummet och toaletten

Praktiskt planerat med badrum och toalett i separata rum. Båda dess utrymmen fint och enhetligt renoverade med samma kakel och klinker – vitt och mörkgrått i tidlös kombo. Rummen ligger också vägg i vägg och har var sitt högt placerat fönster mot väster. Denna planlösning finns även i lägenheten i entréplanet, så det är en ursprunglig idé som byggmästaren eller arkitekten fullföljde snyggt.

Balkongerna

Husets mest spektakulära förnyelse är nog balkongerna både uppe och nere. Numera stor yta att möblera och den svängda L-formen gör att du både ser in över Jönköping och Vätterstranden, men också nästan rakt norrut mot Gränna och Visingsö, till och med Omberg vissa dagar om du vässar blicken. Balkongen uppe har en trappa ner till altanen och poolen som är tänkt att kunna användas gemensamt. Båda balkongerna i rejäl men luftig stålkonstruktion.

Citat 4

"Köket på andra plan är ombyggt och rätt påkostat även om det inte är helt nytt. Här finns både induktionshäll och gasspis."

"Köket på andra plan är ombyggt och rätt påkostat även om det inte är helt nytt. Här finns både induktionshäll och gasspis."

Citat 4

Allrummet på vindsplan

Stort hus har såklart en stor vind. Takfall i alla fyra väderstreck gör att det blir en fin kombination av vackert ljus och snedtak inne. De tre rundade mindre takkuporna är original, men mot utsikten har det byggts en större takkupa senare som gapar stort efter utsikten här högst upp i huset. Vinden inredd för att kunna bli ett eget boende om någon skulle vilja ha det så, men har disponerats tillsammans med stora lägenheten på våning två under lång tid. Även här uppe får du ett vackert vardagsrum med utsikt som tar andan ur dig. Glaspartiet i princip lika stort som på våningarna under.

Sovrummet på vindsplan

Sovrummet ligger med sin fina fönsterkupa mot söder. Snedtaket gör sig påmint, men eftersom golvytan är stor så blir det en väldigt fin känsla i rummet, och det finns många möjligheter att nyttja de lägsta delarna till förvaring. Eller skaffa en låg säng och få en fin inramning av taket. På golvet ligger det ett laminatgolv, både här inne och ute i allrummet, troligen hittar du gamla plank inunder.

Citat 5

"I den stora lägenheten kan man få till upp till fyra sovrum om man vill, jag gissar att nästa ägare kommer låta montera ner köket på vindsvåningen och göra detta till ett sovrum eller hemmakontor."

"I den stora lägenheten kan man få till upp till fyra sovrum om man vill, jag gissar att nästa ägare kommer låta montera ner köket på vindsvåningen och göra detta till ett sovrum eller hemmakontor."

Citat 5

Badrummet och pentryt på vindsplan

Badrummet har sin egen takkupa och en dos snedtak även här såklart. Men inga problem även om du är lång, duschen står med maximal takhöjd. Badrummet renoverat på senare tid samtidigt som mycket annat i huset. Ett mindre kök här uppe gör att du inte behöver springa ner till stora köket i onödan, utan kan ha den lilla kylen full med dricka till exempel. Tidigare var detta våningsplan en egen lägenhet men är sammanslaget med våningen under sedan länge. Behöver du fler sovrum skulle det gå relativt enkelt att konvertera om detta kök till ett mer konventionellt rum.

Lägenheten i markplan

De två våningsplanen i huset är alltså i princip identiskt planerade och har kvar den ursprungliga planlösningen. Köket här nere är lite mer avdelat från hallen och med en lite större matplats, eftersom det inte finns någon köksö här nere. Vardagsrum och matsal med samma fina fiskbensparkett som uppe, med dubbla utgångar till balkongen. Köket basrenoverat ungefär samtidigt som köket renoverades uppe. Även här badrum och toalett separerade vilket är väldigt praktiskt tänkt. Balkongen ansluter med en grind till den allmänna uteplatsen, poolhänget och resten av trädgården.

Citat 6

"Huset blev både varmare och tystare efter fönsterbytet häromåret, man bor i stan med närheten till bussen men utan att bli störd nu."

"Huset blev både varmare och tystare efter fönsterbytet häromåret, man bor i stan med närheten till bussen men utan att bli störd nu."

Citat 6

Studentrummen

Huset rymmer alltså två studentrum som kan hyras ut som inackorderingsrum, med tillgång till källarens tvättstuga och förrådsutrymmen. De båda rummen ligger med separata egna ingångar i källarplanet, med kaklade golv och vattenburen golvvärme i båda. Båda rummen har egna pentrykök och helkaklade badrum med wc, handfat och duschhörna. Uppskattade av många studenter under senare år, inte minst för att bussen går ofta och stannar så nära uppe på Hallmansvägen. Rummen bidrar såklart till husets fina totalekonomi för dig som ägare.

Övriga källaren

Hela källaren är också i bra skick med många funktioner tillgängliga för alla boende i huset. Det gäller inte minst tvättstugan som har dubbla tvättmaskiner och både torktumlare och torkskåp. En separat extra toalett finns liksom en duschkabin om det behövs i något sammanhang. Dubbla matkällare påminner om att det är tvåfamiljshus. Dubbelt upp även i pannrummet – bergvärmepumpen har två stora ackumulatortankar, så att det finns varmvatten till hela huset.

Mäklaren informerar

Nuvarande ägare har ägt fastigheten sedan 2008. Nedan följer information om renoveringar som utförts under årens lopp och annat som är bra att veta vid ett köp.

2001 - Omdränering av källarvåningen med Platonmatta.

2002 - Vindsvåningen inreddes till boyta och här finns både duschrum och i dagsläget ett kök som inte används. Detta var tidigare en separat lägenhet men är sedan många år sammanslagen med ytan på andra plan.

2003 - Inredning av två stycken studentrum i källarplan, ett om cirka 18 kvadratmeter och ett om cirka 24 kvadratmeter. Båda dessa rum har vattenburen golvvärme, helkaklade duschrum med handfat, WC och duschhörna samt pentrykök med spishäll, vask och kyl/frys. Det ena har ytterdörr i öster mot Narvavägen och det andra har ingång via trädgården från söder.

2005 - Byggnation av uppvärmd pool. En gjuten konstruktion klädd i mosaikkakel där all utrustning för pump, filter etc sitter monterad i garaget.

2005/2006 - Omfattande utbyggnation av huset i källarplan med nytt dubbelgarage med vattenburen golvvärme.

2006 - Helrenovering av badrum och wc på andra plan med helkaklade väggar och klinkergolv.

Renoveringar utförda under nuvarande ägares tid:

2008 - Helrenovering av badrum och wc i lägenheten i markplan. Allt arbete utfört av behöriga hantverkare.

2021 - Ny bergvärmepump (Scandinavia 9000) med dubbla ackumulatortankar för mycket god varmvattenkapacitet. Pumpen är ansluten till ett 181 meter djupt borrhål.

2022 - Byte av alla fönster och balkongdörrar på plan två och tre från äldre kopplade 2-glas till 3-glas isolerfönster från Mockfjärds, även på nidsplanet byttes de stora fönstren ut mot Vättern vid allrummet. Några källarfönster är äldre och även de mindre fönstren uppe på vinden i de små kuporna. Alla plåtarbeten runt de nya fönstren är utfört av Plåt & Vent AB i Bankeryd.

2025 - Omfattande service av poolens maskinella utrustning med ny pump, nya slitagedelar och ny värmepatron.

Lägenheten i markplan har egen elmätare och hyresgästen betalar således sin egen hushållsel. Värme, vatten och bredband ingår i hyran som för närvarande är 11 000 kr/månad.

De två studentrummens förbrukning av hushållsel ingår i hyran som även inkluderar värme, vatten och bredband. Ett av rummen är cirka 25 kvm stort och hyran här är 5 000 kr/månad och det andra är cirka 18 kvm och har haft en hyra om 4 800 kr/månad.

Totala hyresintäkter har således uppgått till 249 600 kr/år.

Fastigheten är påkopplad mot Jönköping Energis öppna fiber, så kallat Wetternet. Den fasta månadskostnaden för anslutningen är för närvarande 70 kr/mån. För mer information om olika bredbandslösningar och TV-paket som kan beställas genom denna tjänst, besök gärna wetternet.se/anslut

Vid försäljningen medföljer två garderober som står i sovrum på vindsplanet, en stor skjutdörrsgarderob i sovrum på andra plan och den Husqvarna Automower som sköter om gräsytorna runt huset.

Bilder

Planritning

Bymarken

Att bo på Bymarken har sina fördelar. Framförallt den fantastiska utsikten! Men det är också barnfamiljernas mecka på flera sätt. Skolan och förskola ligger på gångavstånd, Hallbys fotbollsplaner likaså. Du har även några få minuter till bussen om du inte vill ta promenaden till stan.

Vill du bevaka fler bostäder som denna?