Logotyp

Huskvarna Egnahem

Solhemsgatan 5

Alla bilder
Panoramavy

Insynen minimal - utsikten maximal

Ytterst diskret från gatan. Egnahem visar sig från sin absolut bästa sida, med inbäddat läge på den översta gatan. Ytligt sett är huset i princip helt original från 60-talet, förutom det nygjorda badrummet. Men tekniskt sett är det mesta gjort som lätt äter stora pengar i det osynliga: nya fönster, nya va-ledningar från gatan, bergvärmepump, dränerad och isolerad grund, taket omlagt och panelen bytt och målad. Vad du sparar av 60-talet, beror på hur mycket retro du är i själen. Här hittar nostalgikern bland annat fina sjögrästapeter som är som nya. Och finparketten börjar direkt innanför dörren.

Huset ligger betydligt längre ner från gatan än sina grannar, vilket gör att ögat luras på dimensionerna. Det är ett stort hus med fyra sovrum på rad i entréplanet och ett vardagsrum som bjussar på hissnande 60 kvadratmeter i en öppen volym. En trappa ner ytterligare stora sociala ytor, en andra eldstad och ett femte sovrum, förutom biytor i överflöd. Badrummet uppe renoverat i närtid, men nere har du möjlighet att skapa den perfekta logistiken med bad, tvätt och klädförvaring för en stor familj. Planlösningen uppe gör det lätt att öppna mellan kök och vardagsrum.

Snabbfakta 1-10 Snabbfakta 2-19

En alldeles egen gräddhylla med massor av integritet, och en av södra Vätterbygdens vackraste utsikter. Många tunga investeringar redan gjorda. Vidöppet för en personlig touch med dig som nästa ägare. Skolor och natur in på knuten.

Adress Solhemsgatan 5
Område Huskvarna Egnahem
Fast.beteckning Hakarps-Fagerslätt 1:161
Bostadstyp Friliggande villa
Upplåteleseform Friköpt
Antal rum 7 rum och kök
Bo & biarea 205 + 80 kvm
Tomtarea 1 415 kvm
Byggår 1960
Pris 5 000 000 kr / bud

Vill du veta mer?

Vill du veta mer?

Johan Marklund Ansvarig mäklare 0723-132000 [email protected] Mer om Johan

Det är 12 dagar kvar till visning.

Söndag 16 November
Tid för visning publiceras senare. Välkommen att höra av dig om du har några frågor!

Vill du veta mer om bostaden?

Fyll i dina uppgifter nedan så kontaktar jag dig.

Bostadsbeskrivning

Citat 1

"Här är många investeringar redan gjorda: nytt vatten från gatan, nya fönster, dränerad grund och omlagt tak."

"Här är många investeringar redan gjorda: nytt vatten från gatan, nya fönster, dränerad grund och omlagt tak."

Citat 1

Huset

Ett platsbyggt Myresjöhus från början av 1960-talet. Uppenbarligen från det exklusivare sortimentet i huskatalogen. En solid familjevilla med fem sovrum totalt, och ett vardagsrum som är stort som en offentlig möteslokal – cirka sextio kvadrat och tre stora panoramafönster. Gjutet valv och fasad av tegel och träpanel i fin kombo. Huset är byggt i suterräng med garage och stort allrum nere. Entrédörrar på båda planen öppnar för en bottenvåning med integritet för en tonåring som vill leva lite friare, eller kanske ett uthyrningsrum. Köket är original från byggåret, dock kan det bli svårt att rädda, men kan inspirera till att välja ett likadant fast i nyproducerad retrostil. Knacka i väggen in till vardagsrummet så inser du att planlösningen villigt kan öppna sig här. Och kanske en carport med terass som man stiger ut på direkt från köket.

Trädgården

Om du vill kolla in läget innan visning så är det lätt att missa huset när du åker förbi. Det ligger nämligen rätt mycket längre in på tomten än sina grannar utmed gatan. Och den täta tuktade häcken mot gatan gör huset lite extra hemligt den gröna tiden på året. Huset är ett av de allra tidigaste på gatan. Tanken var från början att infarten skulle ske från en gata precis nedanför tomten, det är därför som garaget ligger här. Entréplanet har ingång på gaveln mellan de silvriga barrväxterna och med fin gammal kalksten däremellan. Även uteplatsen på nedsidan med samma vackra kalksten. Här gör solen debut från lunch och slocknar inte förrän hon bäddar in sig i horisonten på andra sidan Vättern. En större terass med carport under med utgång från kök eller vardagsrum uppe vore en fin expansion, så att du kommer ut i det fria även från det planet.

Citat 2

"Utsikten mot väster går inte att fånga på bild, den måste upplevas på plats. Landskapet och Vättern varierar från dag till dag året om."

"Utsikten mot väster går inte att fånga på bild, den måste upplevas på plats. Landskapet och Vättern varierar från dag till dag året om."

Citat 2

Entrén uppe och nere

Du kommer in i huset både uppe och nere. Originalytterdörren i teak är bevarad på övre plan, och väl värd att vårda och bevara till framtiden. Det är nog från gaveln du kommer gå oftast till vardags, för då kommer du enkelt in i köket. Dessutom fin siktlinje rätt igenom huset mot öppna spisen i andra änden uppe. Entrén nere är kanske pampigast för du kommer rätt in i stora allrummet nere, med en öppen spis direkt i blickfånget. Det rustika trätaket i allrummet är original och en ombonad varm kontrast till de ljusare väggarna. Bevara säger vi på Västanhem. Eldstaden skulle kunna värma ända upp i vardagsrummet via trappan.

Trappan

Här är trappan betydligt mer än bara en passage mellan uppe och nere. Snarare ett statement, som bekräftar och förstärker husets pondus och status. En stor bred kurva med djupa steg, tar dig värdigt mellan våningsplanen. Knappast diskret, snarare storstilat. Räcke och ledstång original mot den inre tegelväggen som har samma struktur som det utvändiga teglet på gavlarna. Trappstegen delvis klädda med linoleum, men det går att ändra på för den som vill få fram den fulla träkänslan.

Citat 3

"Våra föräldrar lät uppföra huset för 65 år sedan och har varit väldigt duktiga på att vårda och sköta om det."

"Våra föräldrar lät uppföra huset för 65 år sedan och har varit väldigt duktiga på att vårda och sköta om det."

Citat 3

Vardagsrummet

Vi på Västanhem säger bara: storslaget, representativt, grandiost och underbart. Den öppna ytan med gamla parketten intakt, mäter hela 60 kvadrat. Tre stora panoramafönster mot utsikten gör att du inte missar minsta nyans i himlens skådespel. De ljusgrå marmorbänkarna i fönstren ligger där de alltid gjort, även efter fönsterbytet som genomfördes för några år sedan. De tre fönstren gör att du portionerar denna stora volym på ett bra sätt för olika sittgrupper och matbordet på väg bort mot köket.

Sovrummen

Huset är redo för en växande skara barn, redan originalplanen bjuder på fem sovrum, fyra uppe och ett stort nere. Uppe ligger rummen på rad utmed husets långsida mot öster. Stora sängkammaren längst bort har fönster även på gaveln mot söder. I alla dessa rum ligger samma originalparkett kvar som du även satte fötterna på i hallen, i gången bort och i hela vardagsrummet. Fönstren bytta i samtliga sovrum. Sovrummet nere låter också en dubbelsäng parkeras, vilket ökar flexibiliteten för en familj som växer och mognar.

Citat 4

"Många blir överraskade över att huset är så stort när man kommer in, vardagsrummet mäter hela 60 kvadratmeter".

"Många blir överraskade över att huset är så stort när man kommer in, vardagsrummet mäter hela 60 kvadratmeter".

Citat 4

Köket och matplatsen

Originalköket är kvar, och man kan ju inte mer än imponeras av kvaliteten som var rådande i slutet av 50- och början av 60-talet. Gångjärn, skåp och lådor funkar som de gjort de senaste 65 åren. Är du riktigt retroentusiast så monterar du ner alltihop, renoverar och bygger upp allt igen som du vill ha det. Det finns också kökssnickerier som är helt inriktade på denna typ av funkiskök, om du vill ha ett helt nytt i rätt stil till huset. I köket finns rörelseenergi att släppa loss i två steg, eller varför inte tre. Uppdelningen mellan kök och matplats är nog första steget, och sen är inte väggen mot stora vardagsrummet bärande utan lätt att öppna mer eller mindre den också. Sen är det lätt att bli sugen på en terass utanför köket och kanske en bit av vardagsrummet, för att kunna njuta av aftonen helt naturellt.

Badrummet och övriga våtutrymmen

Badrummet uppe, intill köket, är renoverat så sent som i år och i absolut nyskick. Helkaklat, neutralt i färg och materialval och som kommer stå sig väl över tid, oavsett vilken riktning du tar huset för övrigt. Ligger bra till i huset både för gäster och i förhållande till alla sovrummen. En trappa ner hittar du dessutom separat toalett och ett stort vårutrymme som väntar på ett större förvandlingsnummer. Eftersom huset har gjutna valv och murade väggar i källarplanet banar det väg för en smidig renoveringsprocess. Inkommande VA-stammar bytta.

Citat 5

"I allrummet nere finns ytterligare en entré och närhet till toalett, perfekt om man har en tonåring som vill sova här nere och sköta sig själv."

"I allrummet nere finns ytterligare en entré och närhet till toalett, perfekt om man har en tonåring som vill sova här nere och sköta sig själv."

Citat 5

Allrummet och källarvåningen

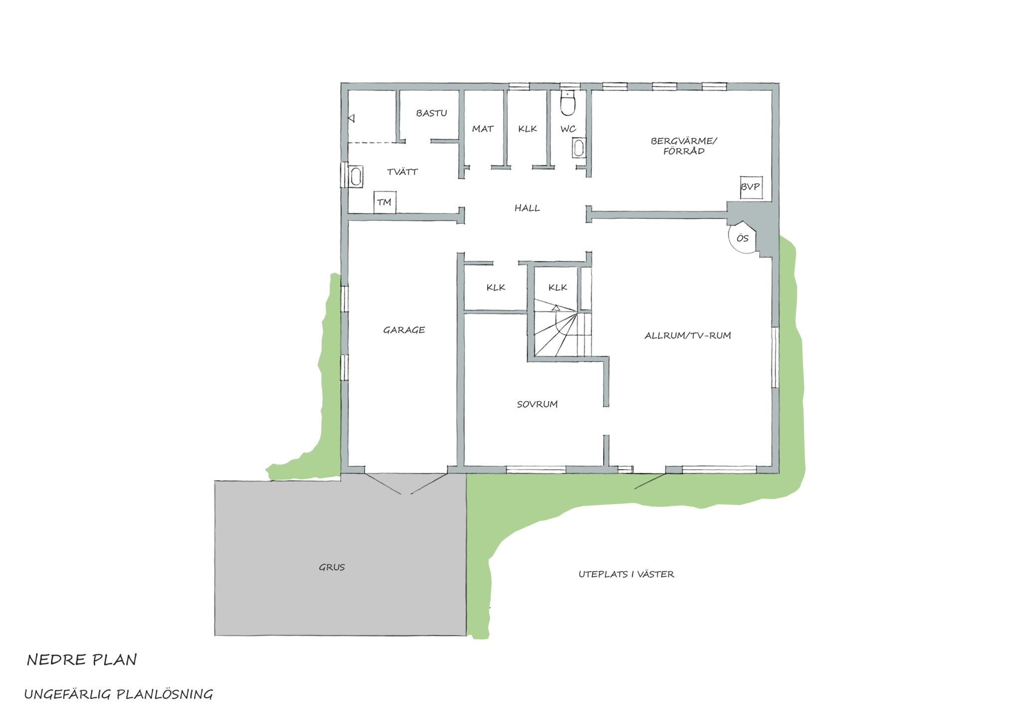
Allrummet nere är precis som vardagsrummet uppe – väldigt stort. Öppna spisen välkomnar antingen du kommer via trappan ner eller in genom ytterdörren på nedsidan. Detta var nog från början tänkt som huset ”finentré” där gästerna togs emot med stil. Hus från 60-talet, byggda i suterräng, har sen alltid en tydlig fördel framför modernare villor: Biytorna. Detta hus är inget undantag. Här hittar du snickrig verkstad, insyltad matkällare med potatis-binge, separat toalett, och bastu, tvättstuga och dusch i kombination. Dessutom ett stort antal förråd bakom både den ena och den andra dörren. Bara under den stora trappan får ett helt liv plats i glömskans skrymslen. Och då har vi inte nämt garaget som alltså ligger med infart i huset från nersidan. Du som vill införliva även den ytan i den framtida boytan har alla möjligheter till det.

Omgivningarna

Du befinner dig nu cirka 150 höjdmeter upp från Vättern och Huskvarna stad. Det innebär en rejäl stigning om du cyklar eller går upp, men det tar inte mycket mer än 15 minuter ner till centrum till fots. Bussförbindelserna är väl utbyggda dessutom. Höjden innebär många vackra vyer, inte minst från utsiktsplatsen några hundra meter bort, som är en given promenad om man har gäster. Plötsligt känns Vättern mer som Bodensjön. Huskvarnabergets alla stigar och leder är ett eldorado för vandrare, löpare och mtb-cyklister. Med lite uthållighet kan du ta dig stigvis hela vägen till Gränna. Bauerleden passerar inte långt bort. På vintern har du både skidspår och slalombacke inom räckhåll. Uppe på Fagerslätt finns både nyare förskolor och en skola när skolplikten kallar.

Planritning

Mäklaren informerar

Nuvarande ägare har bott i huset sedan det uppfördes 1960. nedan följer en sammanfattning av förbättringar som genomförts under årens lopp.

2007 - Omläggning av yttertak med ny takpapp och nya hängrännor och stuprör samt tilläggsisolering av vinden.

2007 - Omdränering och isolering av husets källardel med Isodränskivor samt byte av dagvattenrör från tegel till plaströr.

2007 - Tilläggsisolering av husets västra sida mot Vättern och ny fasadpanel samt byte av fönster från äldre kopplade tvåglas till underhållsfria 2-glas isolerfönster samt ny garageport. Allt arbete utfört av Pålssons Bygg i Huskvarna AB.

2008 - Borrning av 160 meter djupt bergvärmehål samt installation av bergvärmepump från IVT. Allt arbete utfört av Perssons Rör & Värme i Jönköping AB.

2012 - Byte av resterande gamla fönster till nya isolerglasfönster.

2018 - Indragning av fiberoptiskt bredband via Jönköping Energi AB.

2023 - Indragning av ny vattenservis från det kommunala VA-nätet som går i Solhemsgatan.

2025 - Totalrenovering av badrum i entréplan, byte av avloppsstammar i badrum och kök samt nytt golv i köket. Allt arbete utfört av NCC AB och Sundins VVS AB.

2025 - Montering av skorstenshuv i plåt.

Det finns två öppna spisar, en i allrummet nere och en i vardagsrummet uppe. Eldstaden i nedre plan används regelbundet och denna är godkänd för eldning, protokoll för detta finns under "Fakta och dokument" i presentationen.

Eldstaden i vardagsrummet i entréplan har inte använts på ett antal år så vill man sätta denna i bruk bör man kontakta sotare (GÖSAB) och låta utföra en brandskyddskontroll.

Huset är anslutet till öppen fiber genom Jönköping Energi, så kallat Wetternet. För mer information om olika bredbandslösningar och TV-paket som kan beställas genom denna tjänst, besök gärna wetternet.se/anslut. Den fasta månadskostnaden för Wetternet uppgår för närvarande till 70 kr/månad.

Bilder

Planritning

Huskvarna Egnahem

Du befinner dig cirka 150 höjdmeter upp från Vättern och Huskvarna stad. Här bor du nära Huskvarnabergets alla stigar och vandringsleder som är ett eldorado för vandrare, löpare och mtb-cyklister.

Vill du bevaka fler bostäder som denna?