Två rum och kök – oändlig volym och utsikt. Här ska du inte stirra dig blind på planritningen, gör dig beredd på en takhöjd upp mot fyra meter i de gamla skolsalarna. Nästan svårt att få grepp om proportionerna när fönstren är så höga och fönsternischerna så djupa. Och när det gäller utsikten så svindlar perspektiv och siktdjup också. Gamla skolor var den tidens borgar, ungdomens danande och bildning stod högst i kurs i samhället. Bostäderna som denna förening erbjuder idag håller samma status. Och det är både med geometrin och geografin som denna lägenhet lockar.
Denna lägenhet har sedan föreningen bildades år 2005 blivit kvar som hyresrätt och säljs nu av föreningen helrenoverad från golv till tak i alla rum. Badrummet med fin kakling som anspelar på husets stil och ålder. Även köket med ramluckor som är precis lagom gammeldags i stilen. Genomgående ligger ny ljus och kvistfri ekparkett, med alla lister och foder bytta runt om. Till och med innerdörrarna med sina spegelblad är bytta. Alltså som att flytta in i en helt nyproducerad lägenhet, men med ovanligt gammeldags inramning.
En lägenhet i nyskick i ett av stans vackraste hus. Takhöjden svindlar och fönstren är fulla av himmel och strand. En trygg förening som imponerar lika mycket sett till årsredovisningen, som till skick och läge.
Här kan du anmäla dig till visning för Plantagegränd 7, Liljeholmen.
Bostadsbeskrivning
Citat 1
"Din strand, din stund i solnedgången – att kunna sitta i köket och titta miltals ut över Vättern med första koppen kaffe för dagen är ett privilegium."
"Din strand, din stund i solnedgången – att kunna sitta i köket och titta miltals ut över Vättern med första koppen kaffe för dagen är ett privilegium."
Huset
Detta skolhus uppfördes i början av 1900-talet, då skolor hade samma status som slott och kyrkor, och bildning stod högt i kurs. En pampig byggnad, med välvda höga fönster och en dekorativ fasad med klassiska ornament. I dag står gamla Liljeholmsskolan högt i kurs som boende i stället, högt eftertraktat av många för ett boende med högsta betyg. Huset renoverades genomgripande vid millenieskiftet, med alla kvaliteter bevarade, exteriört och interiört. Om man lyssnar noggrant, kan man nog fortfarande höra ekot av skolbarn rabblande starka verb och tyska prepositioner, och kanske svära över periodiska systemet. För att höra Vätterns vågor behöver du inte lyssna länge.
Hallen
Tog du trappan upp istället för hissen får du sträcka på benen för att beta av våningsplanen som är nära nog dubbelt höga jämfört med ett modernt hus. Hallen med ny grå-beige klinker som sen fortsätter in i badrummet till höger. Enhetligt är alltid lugnast för ögat. Även om takhöjden är ganska normal precis just här i hallen så anar du att volymen snart kommer att skruvas upp högst avsevärt så fort du stiger in i vardagsrummet. Den ljusa ekparketten enhetligt lagt i bostadens alla rum.
Citat 2
"Vid ombyggnationen kunde byggarna lyfta takhöjden ytterligare i hallen, så vardagsrummet känns nu ännu större."
"Vid ombyggnationen kunde byggarna lyfta takhöjden ytterligare i hallen, så vardagsrummet känns nu ännu större."
Vardagsrummet och läshörnan
Sakralt, monumentalt och alldeles underbart. Var så säker, alla dina sinnesorgan känner av den rymd och atmosfär som väntar här i vardagsrummet. Ljuset kommer från två stora södervända fönster, och via kök och sovrum får du in ljuset från norr. Och alla fönstren är så höga att du ser inte bara ut, utan rätt upp i himlen dessutom. Vardagsrummet girar av 90 grader bort i en alkov som blir ett koncentrat av ljuset och denna del kan bli spännande att inreda; kanske med ett skrivbord och en läsfåtölj, kanske som ett växthus eller med en dagbädd så att du kan vila vackert, och låta dina gäster sova över. Om du börjar fundera på takhöjd och lampor så har föreningen stegar som gör livet lättare i det avseendet.
Köket och matplatsen
Skjutsa in potatisgratängen i ugnen och du hinner ta ett långbad i vågorna, eller en kort löptur fram och tillbaka till Rosenlunds sandbankar. Allt i köket är nytt och bytt i samband med att föreningen nu säljer denna lägenhet efter många år som hyresrätt. Luckor och lådor har en diskret antikprofil som ger en solid känsla till köket, och den grå nyansen har precis den rätta touchen. Bänkskivan tillverkad i stenkomposit och kommer vara en tålig och trogen följeslagare i många år. Matbordet kan vara rätt stort innan det känns övermöblerat. Kanske ska du satsa på ett flexibelt bord som kan växa stort, och flytta in vardagsrummet vid behov. Annars är matplatsen perfekt för både fyra och åtta sittande – utsikten är bästa kryddan.
Citat 3
"Köks- och sovsrumsfönstret vetter nästan helt rakt mot norr, på sommaren innebär det både solnedgång och morgonrodnad."
"Köks- och sovsrumsfönstret vetter nästan helt rakt mot norr, på sommaren innebär det både solnedgång och morgonrodnad."
Sovrummet
Här är synintrycken koncentrerade runt grundelementen: himmel, sand och vatten. Större delen av året ligger stranden vackert öde utanför sovrumsfönstret. Så befriande rofyllt att man först nästan blir rastlös av det vackra. Man vill ta in allt på en gång – bums. Att sova med en glipa i fönstret gör att du hör vågorna vakna av vinden, och kanske fåglarna som tar ton. Sommartid kan det stå på vid gavel utan att du kommer höra något alls av staden på andra sidan. Även den höga garderobslösningen är ny utmed hela väggen bakom dörren. Snyggt inbyggd.
Badrummet
Helrenoverat även här med en fin antikflirt när det gäller kakelvalet. Notera det fina avslutet med listen – en så kallad gesims – där det är halvkaklat mot väggen och längs duschväggen upp till taket. Golvvärme, handdukstork, vägghängd toalett och väldigt fin finish på allt. Allt är alltså helt nytt och oanvänt. Tvättmaskinen redo när du vill, men det finns en betydligt större tvättinrättning i föreningens källare där du kan ta dig an den stora lakanstvätten med effektiv torkprocess.
Citat 4
"Det går en röd tråd genom hela bostaden, den känns klassiskt sober men ändå modern och funktionell med allt man vill ha 2025."
"Det går en röd tråd genom hela bostaden, den känns klassiskt sober men ändå modern och funktionell med allt man vill ha 2025."
Föreningens innergård
Innergården är en mycket uppskattad tillgång i föreningen, även i jämförelse med själva stranden. Eller som ett komplement till stranden kan man säga. Här har du lä och egen lek- och grillplats. Barnen kan springa fritt, för husen har skyddande grindar mellan sig. Här ordnar föreningen grillkvällar på sommaren, men är också en spontan samlingspunkt. Även grind ut genom muren, till stranden, vattnet och vågorna. Nu eller aldrig, skaffa en kajak!
Vätterstranden
Här kommer du leva med daglig kontakt med Vätterns humörsvängningar. Vättern är ett fenomen som ska upplevas "live" varje dag året runt. Ibland med mer kläder på, ibland med mindre. Och några gånger kanske med skridskor på fötterna, men det är inte varje år tyvärr som isen lägger sig. Har du glömt mjölken till kaffet, så tar det inte många minuter att reparera misstaget. En promenad fram och tillbaka till Rosenlunds sandbankar räcker som humörinjektion.
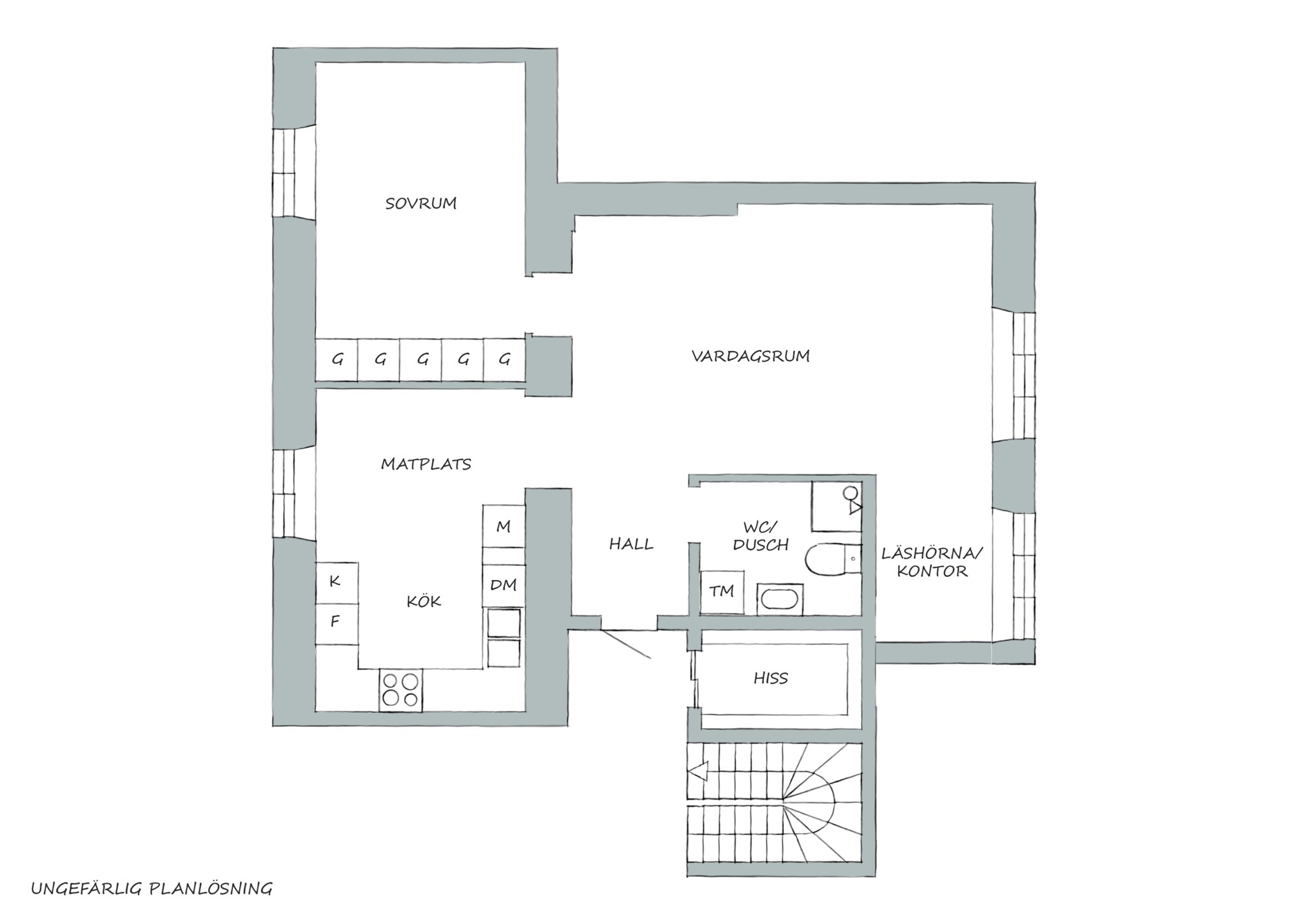
Planritning
Mäklaren informerar
Bostadsrätten säljs av föreningen och har under 2025 genomgått en mycket omfattande totalrenovering från att tidigare nyttjats som en hyresrätt mellan åren 2000-2025.
All el i hela lägenheten är omdragen och ansluten till elcentral med automatsäkringar med jordfelsbrytare. Utanpåliggande elkablar är numera infrästa i väggen och alla eluttag och strömbrytare är bytta. Allt arbete utfört av Huskvarna Eltjänst AB.
Badrummet är totalrenoverat med nya fuktspärrar, nytt klinkergolv med elburen golvvärme och halvkaklade väggar där övre delen av väggen är målad med våtrumsfärg. I duschzonen är väggarna helkaklade. Allt porslin och även tvättmaskinen är helt nytt och oanvänt. Allt arbete utfört av Brion VVS AB.
Samtliga innertak och ytskikt är omspacklade och ommålade, allt arbete utfört av Hallins Måleri AB.
Köket kommer från Epoq och samliga vitvaror är helt nya. Bänkskivan är i stenkomposit med ett 100 mm högt uppvik i bakkant och stänkskyddet är i övrigt målat med våtrumsfärg som är lätt att hålla ren och torka av. Byggnation och montering av köket genomfört av snickare från Jonssons Bygg i Bankeryd AB.
I hela bostaden undantaget hallen och badrummet ligger enhetlig vitlaserad ekparkett som är omslipningsbar, denna är inlagd via lokala företaget Miljöhallen AB. Samtliga golvlister, dörrfoder och innerdörrar är också bytta. I sovrummet så har en helt ny garderobsvägg byggts.
Bostaden är ansluten till fiberoptiskt bredband via Jönköping Energi och bredband samt ett grundutbud av TV-kanaler ingår i månadsavgiften.
Som köpare är man garanterad en bilplats på gården, vid bilplatsen finns laddstolpe för elbil där man via föreningen debiteras en kostnad som för närvarande ligger på 2.50 kr/kWh. Grundkostnaden för parkering är 350 kr/månad, och vill man använda laddstolpen tillkommer en fast avgift om 50 kr/mån till föreningen samt en avgift om 79 kr/mån till Voltiva som driftar laddstolpen.
De pengar som försäljningen inbringar kommer gå direkt in i föreningens kassa och kommer användas för att amortera av på föreningens banklån och för att fortsatt underhålla föreningens hus så dessa håller en hög teknisk standard.
Bostadsrätten säljs av föreningen och har under 2025 genomgått en mycket omfattande totalrenovering från att tidigare nyttjats som en hyresrätt mellan åren 2000-2025.
All el i hela lägenheten är omdragen och ansluten till elcentral med automatsäkringar med jordfelsbrytare. Utanpåliggande elkablar är numera infrästa i väggen och alla eluttag och strömbrytare är bytta. Allt arbete utfört av Huskvarna Eltjänst AB.
Badrummet är totalrenoverat med nya fuktspärrar, nytt klinkergolv med elburen golvvärme och halvkaklade väggar där övre delen av väggen är målad med våtrumsfärg. I duschzonen är väggarna helkaklade. Allt porslin och även tvättmaskinen är helt nytt och oanvänt. Allt arbete utfört av Brion VVS AB.
Samtliga innertak och ytskikt är omspacklade och ommålade, allt arbete utfört av Hallins Måleri AB.
Köket kommer från Epoq och samliga vitvaror är helt nya. Bänkskivan är i stenkomposit med ett 100 mm högt uppvik i bakkant och stänkskyddet är i övrigt målat med våtrumsfärg som är lätt att hålla ren och torka av. Byggnation och montering av köket genomfört av snickare från Jonssons Bygg i Bankeryd AB.
I hela bostaden undantaget hallen och badrummet ligger enhetlig vitlaserad ekparkett som är omslipningsbar, denna är inlagd via lokala företaget Miljöhallen AB. Samtliga golvlister, dörrfoder och innerdörrar är också bytta. I sovrummet så har en helt ny garderobsvägg byggts.
Bostaden är ansluten till fiberoptiskt bredband via Jönköping Energi och bredband samt ett grundutbud av TV-kanaler ingår i månadsavgiften.
Som köpare är man garanterad en bilplats på gården, vid bilplatsen finns laddstolpe för elbil där man via föreningen debiteras en kostnad som för närvarande ligger på 2.50 kr/kWh. Grundkostnaden för parkering är 350 kr/månad, och vill man använda laddstolpen tillkommer en fast avgift om 50 kr/mån till föreningen samt en avgift om 79 kr/mån till Voltiva som driftar laddstolpen.
De pengar som försäljningen inbringar kommer gå direkt in i föreningens kassa och kommer användas för att amortera av på föreningens banklån och för att fortsatt underhålla föreningens hus så dessa håller en hög teknisk standard.
Brf Vätterbrus
Föreningsinformation
Org.form
Bostadsrätt
Org.nummer
769608-3752
Äkta/oäkta förening?
Äkta
Antal lägenheter
40 st
Antal lokaler
1 st
Överlåtelseavgift
1500 kr
(betalas av
köpare)
Pantsättningsavgift
593 kr
Om föreningen
Bostadsrättsföreningen Vätterbrus förvärvade år 2005 fastigheten Folkskolan 2, bestående av tre bostadsbyggnader liggande utmed Vätterns strand i stadsdelen Liljeholmen i Jönköping. Föreningen består av 40 bostadslägenheter och en lokal som hyrs ut.
Fastigheten angränsas i norr av Vättern, i söder av Östra Storgatan och i öster av Plantagegränd, vilken också utgör postadress. Namnet på gränden kommer av att en trädgårdsanläggning (ett plantage) tidigare fanns i området före de nuvarande byggnaderna. Bostadshuset som ligger längst åt väster stod klart år 2000. De två övriga byggnaderna är före detta skolhus av betydligt äldre datum och benämndes ursprungligen Östra folkskolan och senare Liljeholmsskolan. Det mindre skolhuset blev klart 1871 och det större, med klocktorn, stod färdigt år 1900. Det stora skolhuset ritades av arkitekten Fredrik Sundbärg (f. 1860, d.1913) som mellan åren 1890-1900 arbetade som stadsplanerare och stadsarkitekt i Jönköping. Sundbärg ritade även den kända Slottsvillan i Huskvarna som då den uppfördes 1896 användes som disponentvilla för Husqvarna Vapen AB.
Under åren 1999-2000 genomfördes en total ombyggnation av de två äldre huskropparna som då förvandlades till flerfamiljshus. I samband med detta renoverades allting såsom stamrör, elsystem, ventilation etc. Hissar installerades i vissa uppgångar och tvättstugor samt förråd byggdes i källarplanet. På gården finns fina grönområden och lekytor. Föreningen har även en egen passage till Vätterstranden i form av en låst grind. På gården finns gemensamt cykelförråd och gemensam tvättstuga med maskiner samt torkmöjligheter. Ytterligare en tvättstuga finns i stora husets källare.
Föreningen har 40 parkeringsplatser som är dedikerade var och en till respektive lägenhet. Utöver det finns några platser som hyrs ut enligt separat kösystem. Parkeringsplatserna kan endast hyras av medlemmarna och dessa kostar 350 kr per månad och plats. Det finns även möjlighet för föreningens medlemmar att hyra ett övernattningsrum med wc/dusch för 300 kr per natt.
Huset är anslutet till fibernätet Wetternets utbud av tjänster. Ett grundutbud av tv-kanaler och bredband genom Telia ingår i månadsavgiften. Gårdsskötsel och trappstädning sköts av inhyrd fastighetsskötare, gemensam vår- och höststädning anordnas dock för medlemmarna.
Föreningens ekonomi är att anse som mycket god med en belåningsgrad vid årsskiftet 2024/2025 som var låga 5 185 kronor per kvadratmeter.
För mer information om föreningen och kontaktuppgifter till styrelsen, besök gärna deras hemsida www.vatterbrus.se.
4 816 kr/mån inklusive Värme, vatten, bredband, tv
Pris
3 400 000 kr / bud
Tillträdesdatum
Enligt överenskommelse
Byggnadsinformation
Byggnadstyp
Flerbostadshus
Byggnadsår
1900
(Ombyggt år 2000)
Fönster
3-glas
Uppvärmning
Fjärrvärme
Ventilation
Mekanisk frånluftsventilation
Våningsplan
2 av 4.
Hiss finns.
TV- och internetanslutning
Bredband: Fiber via Jönköping Energi är indraget i fastigheten.
Energideklaration
Status
Utförd (2020-03-02)
Prestanda
158 kWh/m2/år
Primärenergital
130 kWh/m2/år
Energiklass
E
Ekonomi
Pris
3 400 000 kr / bud
Månadsavgift
4 816 kr/mån inklusive Värme, vatten, bredband, tv
Andel i föreningen
1.933%
Andel av årsavgift
1.914%
Indirekt nettoskuldsättning
342 630 kr
Information angående nettoskuldsättning
Bostadsrättens indirekta nettoskuldsättning anger hur stor andel av bostadsrättsföreningens lån som indirekt belastar bostadsrätten. Underlagen för beräkningen kommer från föreningen.
Pantsatt
Nej
Driftskostnader
Hushållsel
4 800 kr
Försäkring
1 200 kr
Antal personer i hushållet
1 st
Summa
6 000 kr
Beräknad månadskostnad för hushållsel och hemförsäkring: cirka 500 kr/månad.
Liljeholmen är ett av Jönköpings två stadsnära naturreservat, som snabbt kopplar bort stadens puls och sorl. Detsamma gäller även rundan på spängerna runt Rocksjön. Helt klart kommer Liljeholmsparken, strandpromenaden och cykelvägarna bli dina livsnerver, både mentalt och konditionsmässigt.